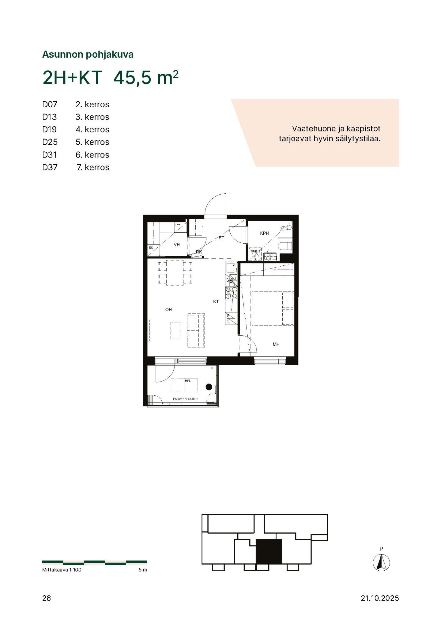
Viilivati 7 D 13

ASO Arvioitu valmistuminen 30.10.2026 Kerrostalo