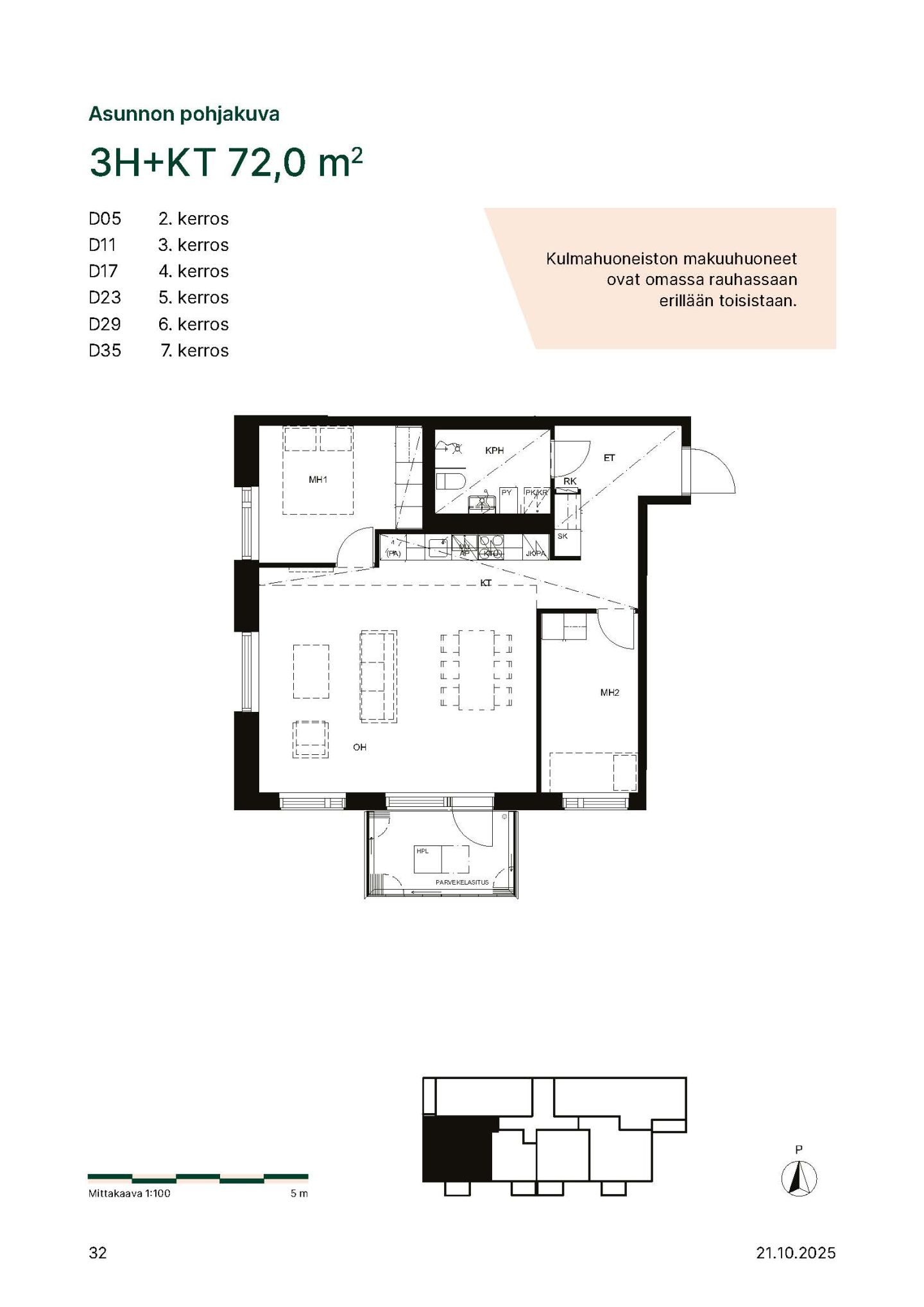
Viilivati 7 D 35

ASO Arvioitu valmistuminen 30.10.2026 Vapautuu 30.10.2026 Kerrostalo