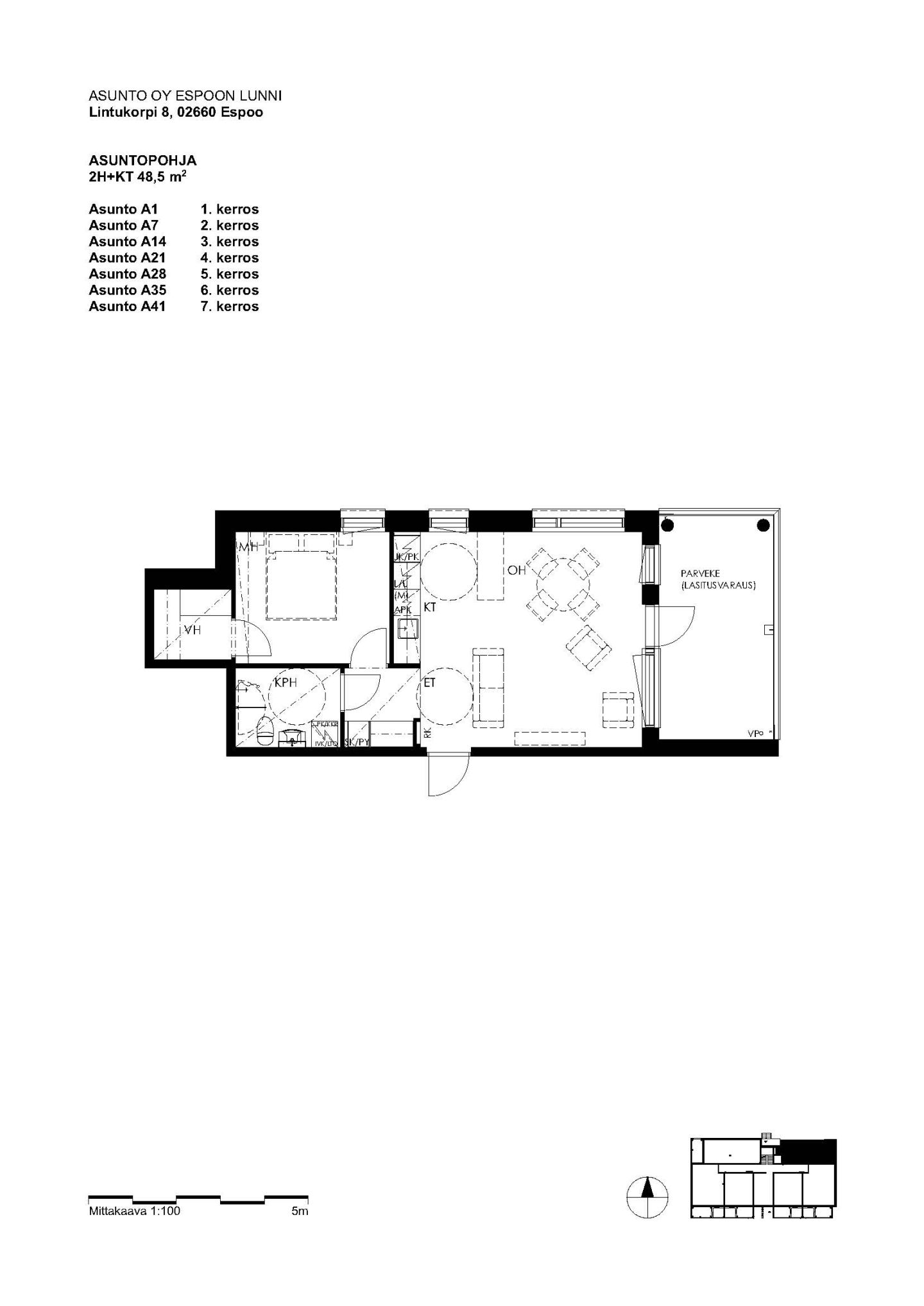
Lintukorpi 8 A 35

Omistus Arvioitu valmistuminen 30.6.2027 Kerrostalo