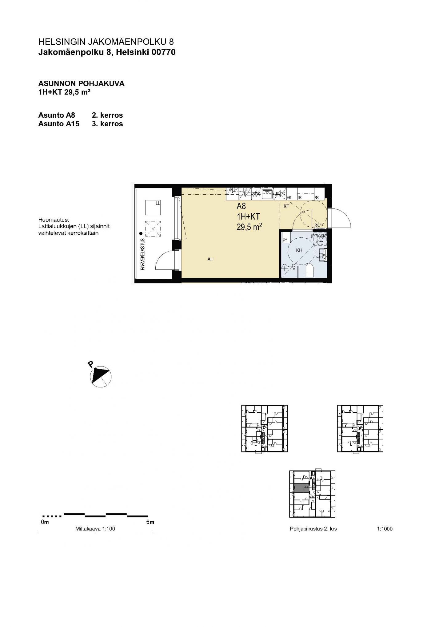
Jakomäenpolku 8 A 08

Vuokra Valmistunut 2023 Vapautuu 1.5.2026 Kerrostalo Kohde-esite