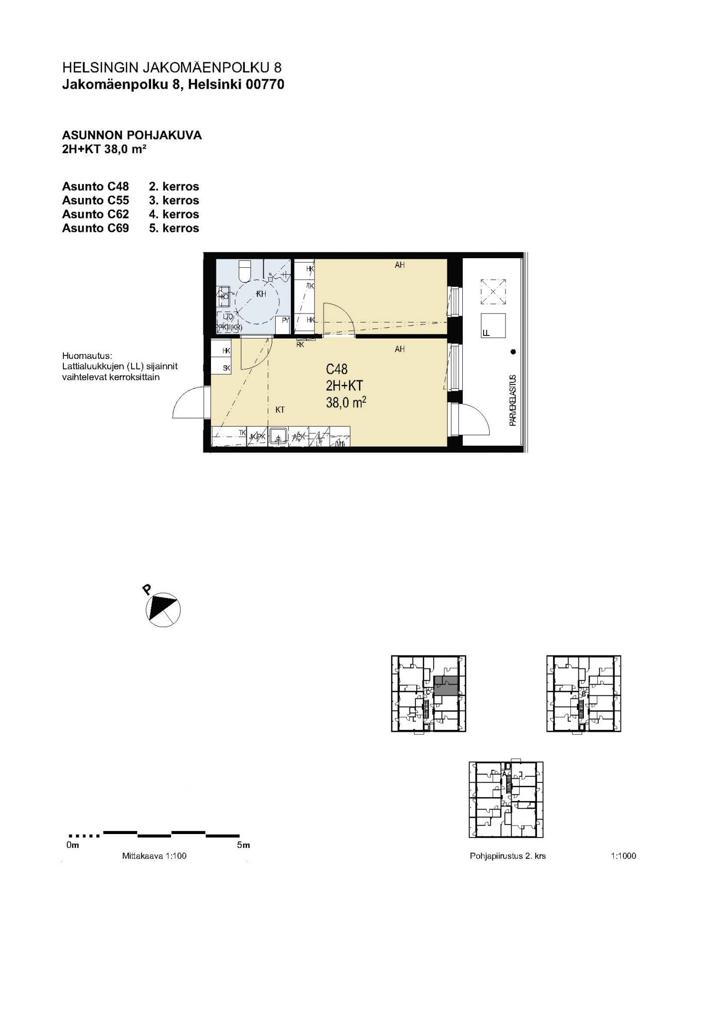
Jakomäenpolku 8 C 48

Vuokra Valmistunut 2023 Vapautuu 1.4.2026 Kerrostalo Kohde-esite