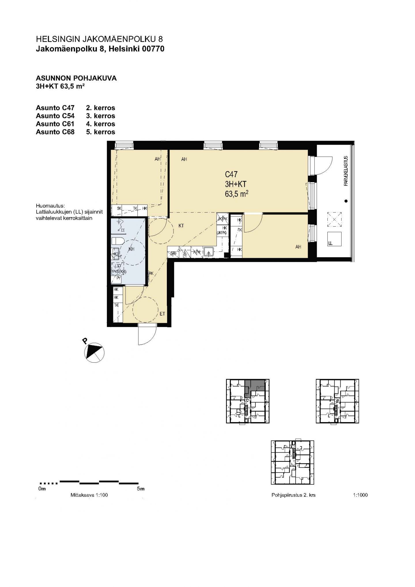
Jakomäenpolku 8 C 61

Vuokra Valmistunut 2023 Vapautuu 1.6.2026 Kerrostalo Kohde-esite