KUNINKAANTAMMEN RIVITALOKODIT OVAT NYT ENNAKKOMARKKINOINNISSA!
HYÖDYNNÄ UUDEN KODIN VARAAJAN ETU! Annamme viidelle ensimmäiselle kauppaan johtavalle varaussopimuksen tehneelle kaupan päälle ilmalämpöpumpun valmiiksi uuteen kotiin asennettuna (arvo n. 2 900 €).
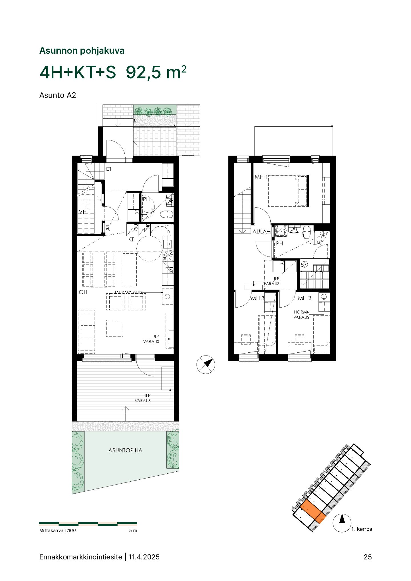
Oletko valmis löytämään unelmiesi kodin? Rakennamme A-energialuokan rivitalokoteja, joissa yhdistyvät energiatehokkuus, viihtyisyys ja hyvä varustelu. Näissä kompakteissa perheasuntoissa on kaikki, mitä tarvitset vaivattomaan, toimivaan arkeen. 2-kerroksiseen Turkoosipihaan rakentuu kaikkiaan 10 kpl 3-4 huoneen rivitalokotia, kokovälille 69,0–95,5 m2. Kaikissa kodeissa on oma sauna, suojaisa terassi sekä asuntopiha. Kokonaisuuden viimeistelevät lattialämmitys ja Puustellin keittotilat.
Sähköauton hitaan latauksen mahdollistavat autopaikat ovat osakkeina myytäviä autohallipaikkoja (á 15 000 €) viereisen talon alla sijaitsevassa autohallissa.
Turkoosipiha rakennetaan valinnaiselle vuokratontille. Voit maksaa tontin lunastusosuuden taloyhtiön valmistuessa tai kuukausittain tontinvuokravastiketta. Lisätietoa tonttiin liittyen saat myyntineuvottelijaltamme.
Kuninkaantammen asuinalue sijaitsee Keskuspuiston syleilyssä houkuttaen erityisesti pyöräilemään ja ulkoilemaan. Autojen pysäköinti on keskitetty pääosin rakennuksien ja pihakansien alle. Lähellä ovat mm. Keskuspuiston ja Vantaanjoen virkistysreitit, hiihtoladut sekä Pitkäkosken maja.
Keskuspuiston rikkaassa ja vaihtelevassa luonnossa riittää ulkoilureittejä sekä luonnonsuojelualueita. Perheiden ilona on leikkipaikka Vennynpuisto sekä hiljattain kunnostettu Palettilampi uimarantoineen ja sitä ympäröivine kävelyreitteineen. Kehittyvässä Kuninkaantammessa on jo päiväkoti ja alakoulu, jotka sijoittuvat aivan Turkoosipihan läheisyyteen. Kaivokselan palveluihin on kävelymatka. Viereinen Hämeenlinnanväylä mahdollistaa nopeat yhteydet ympäri pääkaupunkiseutua.
Turkoosipiha on turvallinen RS-kohde valmistuen arviolta maaliskuussa 2027.
Voit varata uuden kotisi helposti kotisivujemme kautta, jonka jälkeen myyntineuvottelijamme ottaa sinuun yhteyttä.
Myynti ja lisätiedot: Jaana Angeria, jaana.angeria@avainyhtiot.fi, 040 738 5858