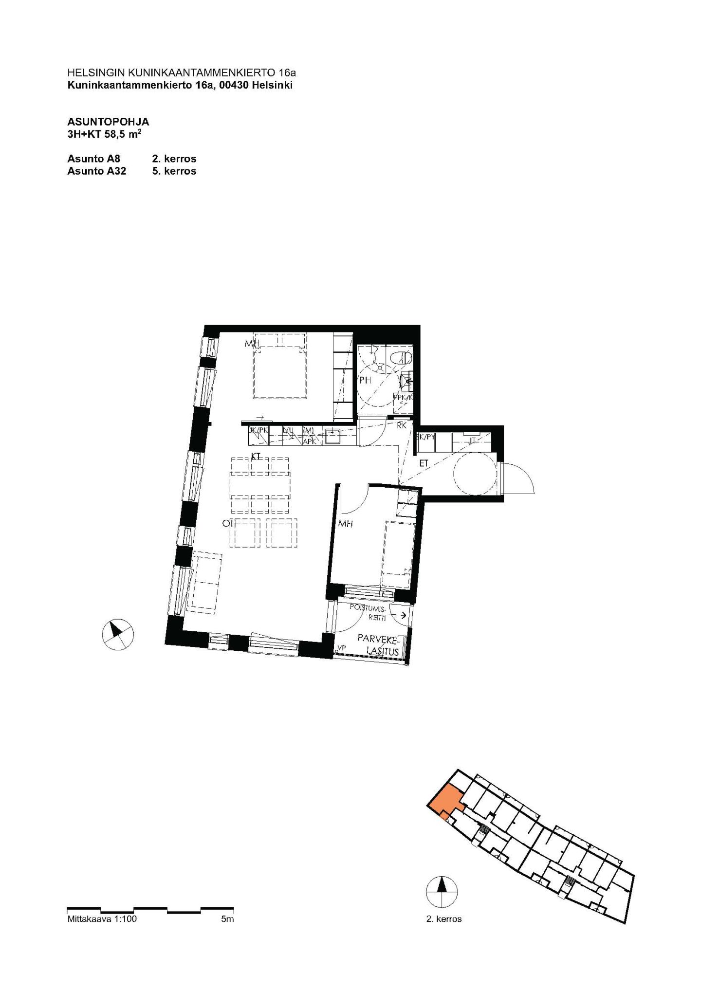
Kuninkaantammenkierto 16a A 08

Vuokra Valmistunut 2026 Heti vapaa Kerrostalo Tulorajat