Uusia Avain-koteja Kuninkaantammeen – valmistuu 2/2026
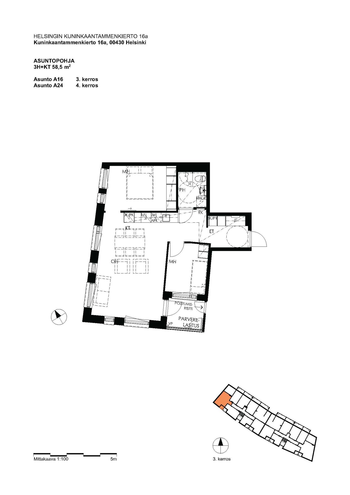
Helsingin Kuninkaantammeen valmistuu helmikuussa 2026 moderni A-energialuokan vuokrakohde, jossa on 59 laadukasta ja toimivapohjaista kotia. Asuntokoot vaihtelevat 29 m² alkovillisista yksiöistä 70,5 m² saunallisiin kolmioihin.
Kaikissa asunnoissa on avara keittotilan ja oleskelutilan yhdistelmä, lasitettu parveke, sekä laadukas varustelu: induktioliesitaso, erillisuuni, astianpesukone, sekä laatoitetut kylpyhuoneet. Lattialämmitys tuo asumiseen mukavuutta ja vapautta sisustamiseen. Osa kolmioista ovat saunallisia, ja maantasokerroksen asunnoissa lisäksi asuntopiha.
Asukkaiden käytössä ovat kattavat yhteistilat, kuten varastot, pesula, kuivaushuoneet, kerhohuone ja saunaosasto. Kellarikerroksen autohallissa on 31 autopaikkaa, joissa jokaisessa mahdollisuus peruslataukseen.
Kuninkaantammen Avain-kodit tarjoavat modernia, helppoa ja huolettomaan asumista luonnonläheisellä alueella.
Kaikki vuokrakohteemme ovat savuttomia ja lemmikit tervetulleita.
Asukasvalintaan käytetään tulorajoja. Esimerkki tulorajoista (brutto): 1 aikuinen 3540,00 €/kk, 2 aikuista 6020,00 €/kk. Lisätietoja tulorajoista: https://ohjeet.varke.fi/fi/asukasvalinta/v4/lyhyen-korkotuen-vuokra-asuntojen-asukasvalinta
Toistaiseksi voimassa oleva sopimus, kuitenkin vähintään 12 kk.
Tarkistamme hakijoiden luottotiedot Suomen Asiakastieto Oy:n tietokannasta.