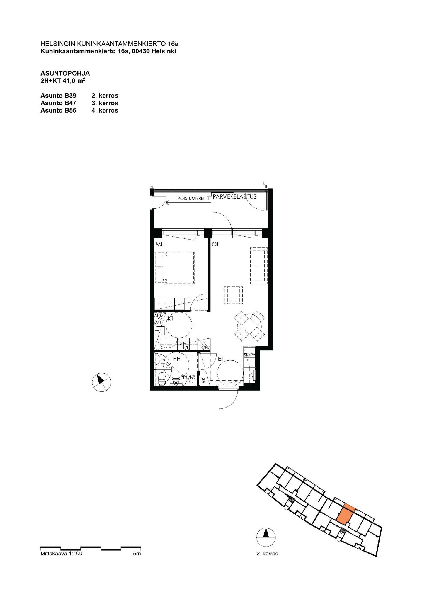
Kuninkaantammenkierto 16a B 55

Vuokra Arvioitu valmistuminen 26.2.2026 Kerrostalo Tulorajat