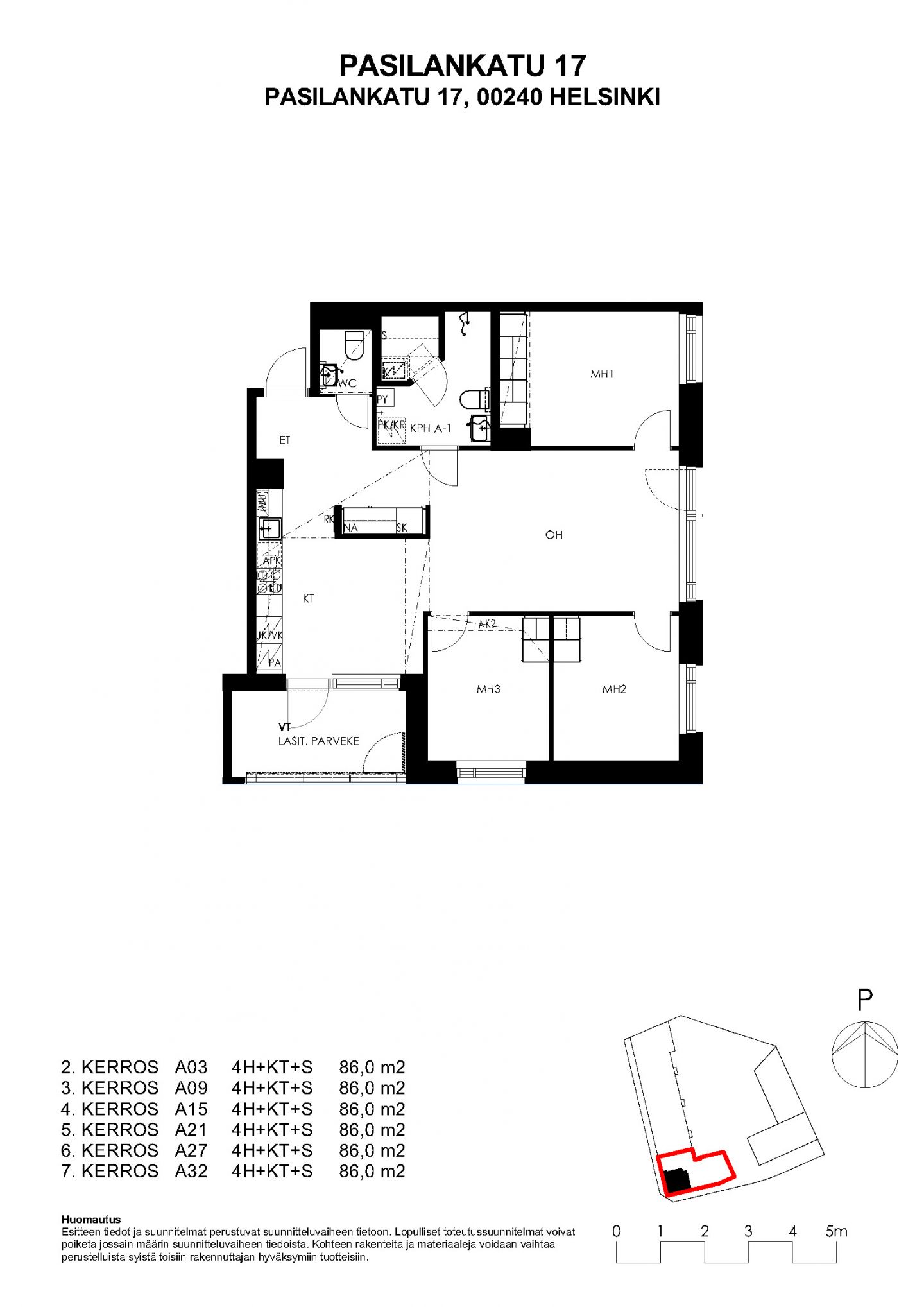
Viihtyisiä koteja Pasilan sydämessä! Mall Of Triplan viereen osoitteeseen Pasilankatu 17 A ja Pasilankatu 17 B ja C on vuonna 2021 valmistunut yhteensä 92 uutta Avain vuokra-asuntoa.
Kohteista löytyy ihania koteja näppäristä yksiöistä aina isompiin perheasuntoihin. Nämä valoisat ja toimivapohjaiset asunnot ovat huolellisesti suunniteltuja ja helppo sisustaa oman tyylin mukaisesti. Kaikki asunnot ovat viimeisen päälle niin varusteiltaan kuin materiaaleiltaankin. Vakiovarusteisiin kuuluu esimerkiksi keraaminen liesi ja erillisuuni sekä astianpesukone.
Pasilassa yhdistyvät kaikki asumisen parhaat puolet. Pääset kotioveltasi lähes suoraan kauppakeskus Triplaan, josta löydät kattavat palvelut. Pasilan rautatieasema on osa kauppakeskusta, joten pääset helposti matkustamaan junalla sekä lähelle että kauas. Lähimmälle raitiovaunupysäkille matkaa kotiovelta on alle 200m. Jos taas haluat nauttia luonnosta ja raittiista ilmasta, alkavat upeat Keskuspuiston reitit noin 500m päässä kotoasi.
Kohde on savuton koko kiinteistön alueella. Toistaiseksi voimassa oleva sopimus, kuitenkin vähintään 12 kk.
Asunnot ovat lyhyen korkotuen ARA-vuokra-asuntoja. Asukasvalintaan käytetään tulorajoja. Esimerkki tulorajoista (brutto): 1 aikuinen 3540,00 €/kk, 2 aikuista 6020,00 €/kk. Lisätietoja tulorajoista:
https://ohjeet.varke.fi/fi/asukasvalinta/v4/lyhyen-korkotuen-vuokra-asuntojen-asukasvalinta
Teethän vuokra-asuntohakemuksen. Asuntoja tarjotaan vain hakemuksen jättäneille. Saat asunnosta tarjouksen sähköpostiisi, mikäli voimme tarjota asuntoa sinulle. Tarkistamme hakijoiden luottotiedot Suomen Asiakastieto Oy:n tietokannasta.