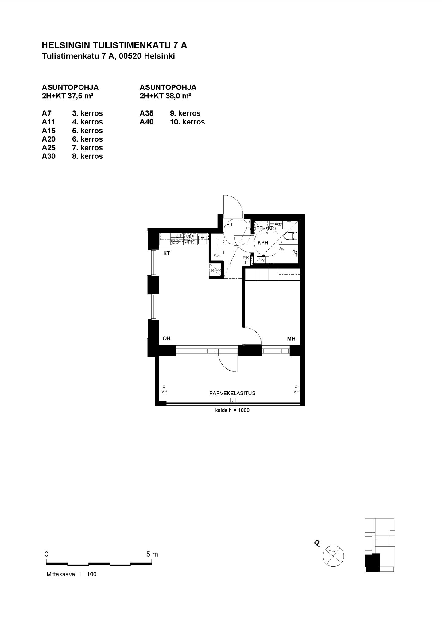
Tulistimenkatu 7 A 30

Vuokra Arvioitu valmistuminen 29.5.2026 Vapautuu 29.5.2026 Kerrostalo