Uusia Avain-vuokrakoteja Pasilan parhaalla paikalla!
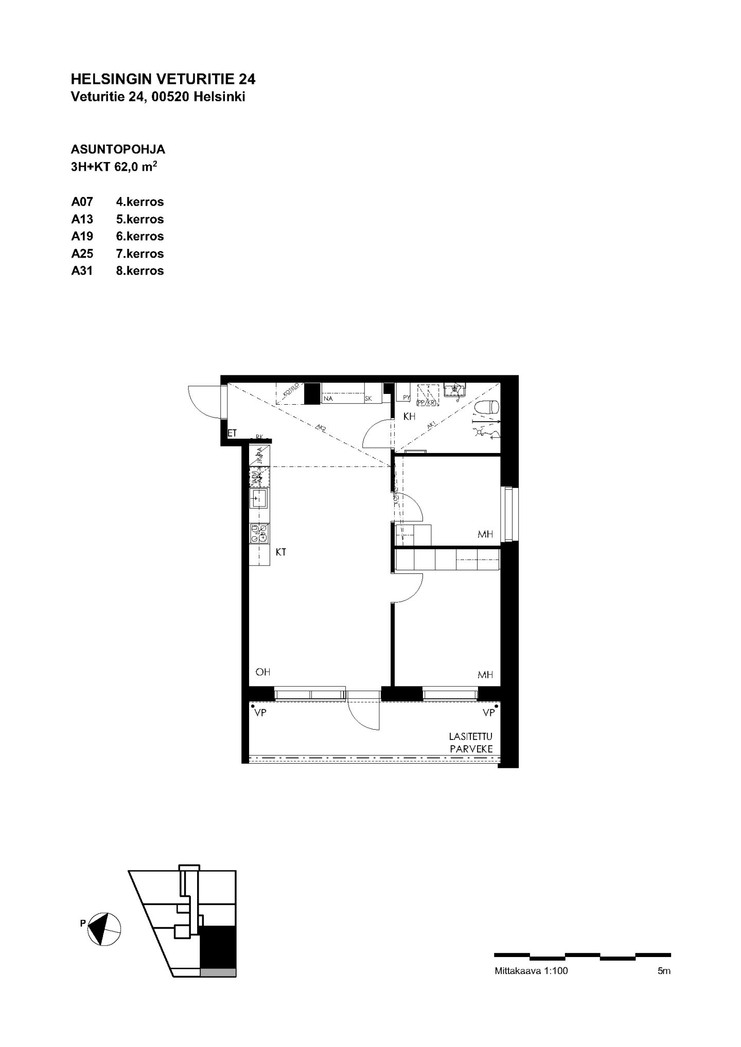
Tervetuloa asumaan Helsingin Pasilan paraatipaikalle! Veturikatu 24:ään on valmistunut maaliskuussa 2025 uusia Avain-vuokrakoteja, jotka sijaitsevat aivan Mall of Triplan vieressä. Näissä kodeissa on valinnanvaraa näppäristä yksiöistä aina kolmen huoneen asuntoihin. Valoisat ja toimivapohjaiset kodit on suunniteltu huolella, ja ne on helppo sisustaa oman tyylin mukaisesti. Kaikissa asunnoissa on laadukkaat varusteet, kuten induktioliesi, erillisuuni ja astianpesukone.
Erinomainen sijainti ja palvelut. Uudelta kotioveltasi pääset lähes suoraan kauppakeskus Triplaan, josta löydät kattavat palvelut ja monipuoliset aktiviteetit. Jos taas kaipaat luonnon rauhaa ja raitista ilmaa, Keskuspuiston upeat ulkoilumaastot ovat vain 500 metrin päässä. Keskuspuistossa on noin 100 kilometriä ulkoilureittejä, joista osa on talvisin hiihtäjien käytössä.
Loistavat liikenneyhteydet. Pasila on Suomen saavutettavin paikka, ja asunnot valmistuvat aivan sen sydämeen. Pasilan rautatieasema on osa kauppakeskus Triplaa, joten junalla pääset helposti niin lähelle kuin kauas. Lähin raitiovaunupysäkki on alle 200 metrin päässä, ja Helsingin keskusta on vain kolmen kilometrin päässä. Pasila on myös pyöräilijän unelma, sillä sen läpi kulkee sekä alueellisia että valtakunnallisia pyöräilyreittejä.
Asunnot ovat lyhyen korkotuen ARA-vuokra-asuntoja. Asukasvalintaan käytetään tulorajoja. Esimerkki tulorajoista (brutto): 1 aikuinen 3540,00 €/kk, 2 aikuista 6020,00 €/kk. Lisätietoja tulorajoista: https://ohjeet.ara.fi/fi/asukasvalinta/v3/lyhyen-korkotuen-vuokra-asuntojen-asukasvalinta
Kohteen asunnot ja koko kiinteistön alue on täysin savuton. Lemmikit ovat tervetulleita koteihimme.
Täyttämällä vuokra-asuntohakemuksen voimme tarjota sinulle uuden kodin! Saat tarjouksen sähköpostiisi, mikäli voimme tarjota sinulle asuntoa. Sopimus on toistaiseksi voimassa oleva, kuitenkin vähintään 12 kk. Tarkistamme hakijoiden luottotiedot Suomen Asiakastieto Oy:n tietokannasta.