Väärävarsi 2 A 15
Kohteen kuvaus
JÄRVENPÄÄN LEPOLAN UUDET KODIT OVAT NYT ENNAKKOMARKKINOINNISSA!
Maalämpö!
Lattialämmitys ja isot ikkunat!
Lepolaan, osoitteeseen Väärävarsi 2 rakennettavaan Asunto Oy Järvenpään Valseen tulee kaikkiaan 26 kpl A-energialuokan viihtyisää kerrostalokotia kokovälillä 31,5–73,0 m2 alkovillisista yksiöistä tehokkaisiin kolmen makuuhuoneen koteihin. Kaikissa kodeissa on iso parveke. Ainolan juna-asema on vain kivenheiton päässä.
Valsen hyvin varustellut asunnot on suunniteltu vastaamaan modernin elämän vaatimuksiin, ja ympäristöystävällinen rakentaminen varmistaa mukavuuden myös tulevaisuudessa. Erityishuomiota kotien suunnittelussa on kiinnitetty säilytystilan tarpeeseen. Asumismukavuutta lisäävä lattialämmitys on miellyttävä ja taloudellinen lämmitysratkaisu helpottaen myös sisustamista. Isoimmissa asunnoissa on oma sauna.
Taloyhtiön 1. kerrokseen tulee talosauna kerhohuoneineen ja vilvoitteluparvekkeineen.
Asukkaiden yhteiskäyttöön tulevat myös suuret ulkoiluvälinevarastot ja erillinen lastenvaunuvarasto sekä kuivaushuone.
Valsen valoisat, viihtyisät kodit lämpiävät maalämmöllä. Asunnot valmistuvat arviolta keväällä 2027.
Valse rakennetaan valinnaiselle vuokratontille, jossa huoneistokohtainen tontin lunastushinta ei sisälly asunnon velattomaan hintaan. Lisätietoa tonttiin liittyen saat kohteen hinnastosta ja myyntineuvottelijaltamme.
Lepola on kehittyvä, rauhallinen ja turvallinen alue, jossa viihtyvät hyvin ihan kaiken ikäiset asukkaat, pienet ja isot perheet, jotka arvostavat rauhallista ympäristöä lähellä palveluita ja luontoa erinomaisia liikenneyhteyksiä unohtamatta.
Voit helposti varata uuden kotisi kotisivujemme kautta, jonka jälkeen myyntineuvottelijamme ottaa sinuun yhteyttä.
avainasunnot.fi/valse
Lisätiedot:
Jaana Angeria, jaana.angeria@avainyhtiot.fi,
040 738 5858
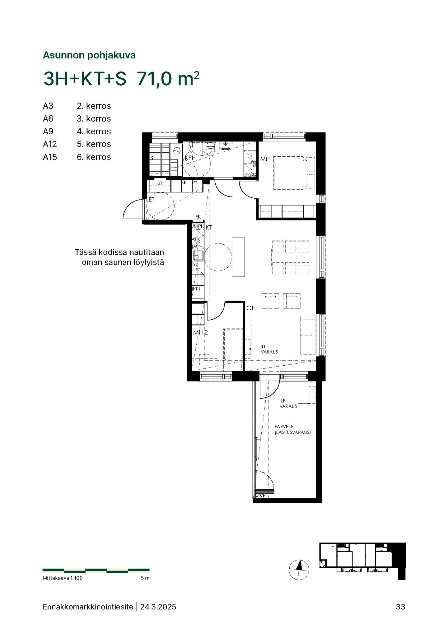
Asunnon perustiedot
| Osoite | Väärävarsi 2 A 15, 04400 Lepola - Järvenpää |
|---|---|
| Huoneistotyyppi | 3H+KT+S |
| Asuintilojen pinta-ala | 71,0 m² |
| Kerros | 6 |
| Huoneistosauna | Kyllä |
| Rakennusvuosi | 2026 |
| Omistusmuoto | Kyllä |
| Irtainvarasto | Kyllä |
Hintatiedot
| Myyntihinta | 104 954,00 € |
|---|---|
| Lainaosuus | 155 708,00 € |
| Velaton hinta | 260 662,00 € |
| Tontin lunastushinta | 26 516,81 € |
| Hoitovastike | 291,10 €/kk |
| Pääomavastike (korko) | 451,13 € |
| Pääomavastike (lyhennys ja korko) | 828,03 € |
| Yhtiövastike yhteensä | 866,48 € |
| Tontin vuokravastike | 124,25 € |
| Neliöhinta | 3 671,30 €/m² |
| Autopaikka alkaen | -/kk |
| Tietoliikenne | Taloyhtiölaajakaista Mb/s sis. vastikkeeseen/vuokraan. |
Lisätietoa rahoituksesta
Asuntokohtaisen yhtiölainan voit maksaa pois valmistumisen yhteydessä tai myöhemmin vuosittain. Mikäli et maksa yhtiölainaa pois, maksat kuukausittain pääomavastiketta. Yhtiölaina on annuiteettilaina, jonka ensimmäinen asumisvuosi on lyhennysvapaata eli pääomavastikkeella maksetaan yhtiölainan korko. Yhtiölainan lyhennykset alkavat toisesta asuinvuodesta eteenpäin (korko+lyhennys). Korkoarvio on laskettu 12kk Euribor-korolla 2,159 % + 0,85 % marginaalilla, tilanne 24.9.2025. Kokonaiskorko 3,0 %. Korko määräytyy lainan nostohetkellä. Mahdolliset korkovaihtelut vaikuttavat pääomavastikkeen määrään. Vesimaksuennakko 25 €/hlö/kk. Piha-autopaikan hoitovastike 20,50 €/kk. Autokatospaikan hoitovastike 24,60 €/kk
- 040 640 4800
- asiakaspalvelu@avainyhtiot.fi
- Avain Asunnot, Lautatarhankatu 8 B, 00580 Helsinki
Kohteen perustiedot
| Kohteen nimi | Asunto Oy Järvenpään Valse |
|---|---|
| Osoite | Väärävarsi 2, 04400 Lepola - Järvenpää |
| Asumismuoto | Omistus |
| Uudiskohde | Kyllä |
| Arvioitu valmistuminen | 29.4.2027 |
| Rakennuksen tyyppi | Kerrostalo |
| Asuntoja | 26 |
| Energialuokka | A (2018) |
| Lämmitysmuoto | Maalämpö |
| Tontin omistus | Valinnainen vuokratontti |
| Antennijärjestelmä | Kaapeli-tv |
Kohteen yhteistilat
| Talosauna |
|---|
| Kuivaushuone |
| Väestönsuoja |
Tutustu lisätietoihin
| Uuden asunnon kauppa ostajan opas (pdf) | Lataa |
|---|
- 040 640 4800
- asiakaspalvelu@avainyhtiot.fi
- Avain Asunnot, Lautatarhankatu 8 B, 00580 Helsinki