Suositulla Ainolanrannan alueella sijaitseva kolmen kerrostalon muodostama kokonaisuus (C-talossa hissi) jonka läheinen Ainolan tanssilava houkuttelee kesäiltaisin tanssimaan ja talviaikaan Jyväsjärven luistinrata ja hiihtoladut ovat ihan vieressä. Rantaraitin vehreisiin ja kauniisti valaistuille lenkkeilyreiteille pääsee aivan talon nurkalta.
Kohteen kaikki 47 asuntoa on uudistettu perusparannuksen yhteydessä vuonna 2019. Hyvin varustellussa keittiössä on mm. keraaminen liesi ja astianpesukone, lattiat ovat laminaattia ja kylpyhuoneet on uudistettu ja laatoitettu kokonaan ja saunat uusittu. Talon asukkailla on käytössään kuivaushuone, kerhohuone, ulkoiluvälinevarasto sekä lastenvaunuvarasto. Sisäpihalta löytyy puutarhakeinu, grillauspaikka ja leikkipaikka lapsille. Sähkötolpallisia autopaikkoja on yhteensä 47, näistä 25 paikkaa on autohallissa. Kaksi paikkaa on varattu vieraskäyttöön.
Kuokkalan palvelut löytyvät noin kilometrin päästä, lähikauppa on saman kadun varrella, eikä kaupungin keskustaankaan ole kuin pari kilometriä. Lähimmät linja-autopysäkit sijaitsevat muutaman sadan metrin päässä ja pyöräilyreitit keskustaan ja muualle päin kaupunkia ovat hyvät.
Asumisoikeusasunnossa asut kohtuuhintaisessa asunnossa ja maksat kuukausittaista käyttövastiketta. Asumisoikeusasukkaana sinulla on pysyvä asumisturva. Pääset myös halutessasi remontoimaan kotiasi.
Lemmikit ovat tervetulleita Avain Asuntoihin.
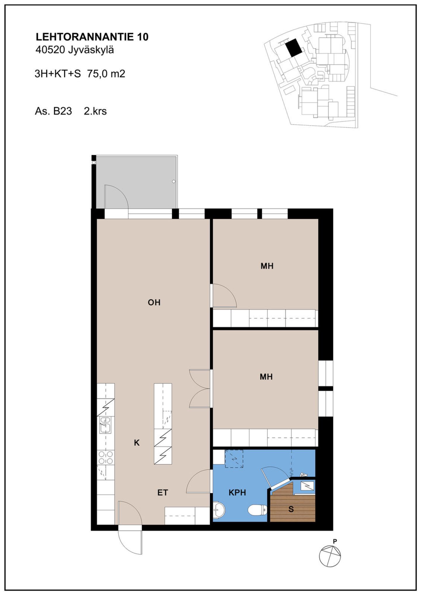
2. kerroksen (ei hissiä) vuonna 2019 perusparannettu saunallinen asunto. Muutostyönä induktioliesi. Tilavat ja valoisat huoneet, laminaattilattia ja sälekaihtimet. Parveke Lehtorannantien suuntaan.