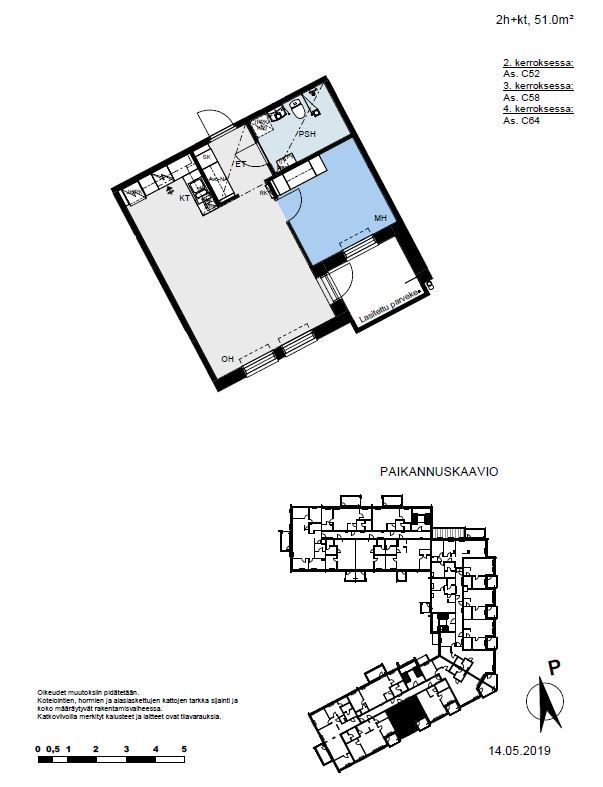
Haukankaari 5 C 64

ASO Heti vapaa Kerrostalo Kohde-esite (PDF)