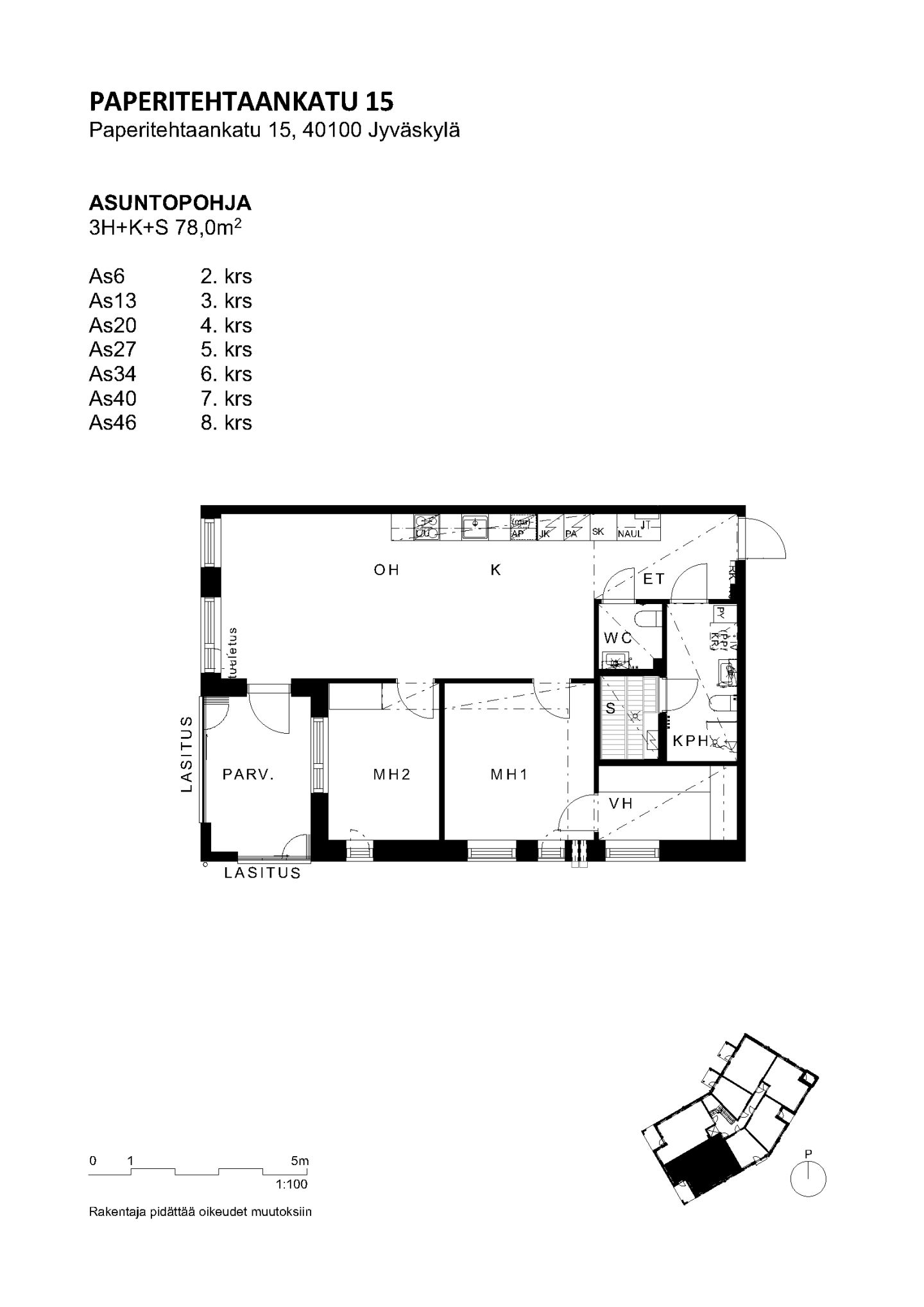
Jyväskylän Paperitehtaankatu 15 on omalle tontille rakennettava yhden asuinkerrostalon taloyhtiö. Talo valmistuu asukkaidensa käyttöön 30.1.2026. Huoneistoja tähän taloon valmistuu yhteensä 47 kpl:ta. Talo tarjoaa asujalleen hyvät puitteet. Löydät asuntoja aina tehokkaista yksiöistä tilaviin perheasuntoihin asti.
Kankaan alue sijaitsee Jyväskylän ydinkeskustan ja Seppälän alueen välittömässä läheisyydessä, etäisyys palveluihin on noin 1 km. Kankaan alueelle on valmistunut päiväkoti syksyllä 2019 ja muutaman sadan metrin säteellä löytyy kaksi lähikauppaa.
Paperitehtaankatu 15:n ihan vieressä on paikallisliikenteen linja-autopysäkki ja kevyenliikenteen reitit keskustaan ja muualle kaupunkiin kulkevat molemmin puolin korttelia. Alueen autopaikoitus toteutetaan Kankaan alueen yhteispysäköintinä, josta vastaa Jyväs-Parkki Oy. Lähin Jyväs-Parkin pysäköintitalo sijaitsee 200 metrin päässä.
Jyväskylän Paperitehtaankatu 15:n asunnot ovat valtion tukemia vuokra-asuntoja, joissa noudatetaan tulorajoja asukasvalinnassa.
Esimerkki tulorajoista (brutto): 1 aikuinen 3540,00 €/kk, 2 aikuista 6020,00 €/kk.
Lisätietoja tulorajoista: https://ohjeet.varke.fi/fi/asukasvalinta/v4/lyhyen-korkotuen-vuokra-asuntojen-asukasvalinta
Sopimukset tehdään toistaiseksi voimassa oleviksi, kuitenkin niin, että minimiasumisaika on 6 kk.
Lemmikit ovat tervetulleita Avain asunnoille.
Kohde on savuton ja tupakointi sekä sähkösavukkeiden käyttö on kielletty parvekkeilla sekä kiinteistön tontilla.