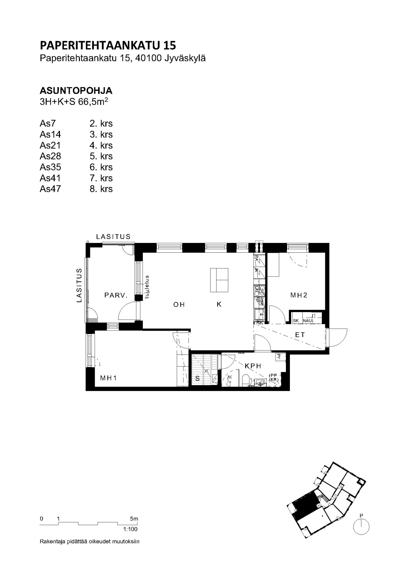
Paperitehtaankatu 15 A 35

Vuokra Arvioitu valmistuminen 30.1.2026 Kerrostalo Tulorajat