Jyväskylän Paperitehtaankatu 15 on omalle tontille rakennettava yhden asuinkerrostalon taloyhtiö. Talo valmistuu asukkaidensa käyttöön 30.1.2026. Huoneistoja tähän taloon valmistuu yhteensä 47 kpl:ta. Talo tarjoaa asujalleen hyvät puitteet. Löydät asuntoja aina tehokkaista yksiöistä tilaviin perheasuntoihin asti.
Kankaan alue sijaitsee Jyväskylän ydinkeskustan ja Seppälän alueen välittömässä läheisyydessä, etäisyys palveluihin on noin 1 km. Kankaan alueelle on valmistunut päiväkoti syksyllä 2019 ja muutaman sadan metrin säteellä löytyy kaksi lähikauppaa.
Paperitehtaankatu 15:n ihan vieressä on paikallisliikenteen linja-autopysäkki ja kevyenliikenteen reitit keskustaan ja muualle kaupunkiin kulkevat molemmin puolin korttelia. Alueen autopaikoitus toteutetaan Kankaan alueen yhteispysäköintinä, josta vastaa Jyväs-Parkki Oy. Lähin Jyväs-Parkin pysäköintitalo sijaitsee 200 metrin päässä.
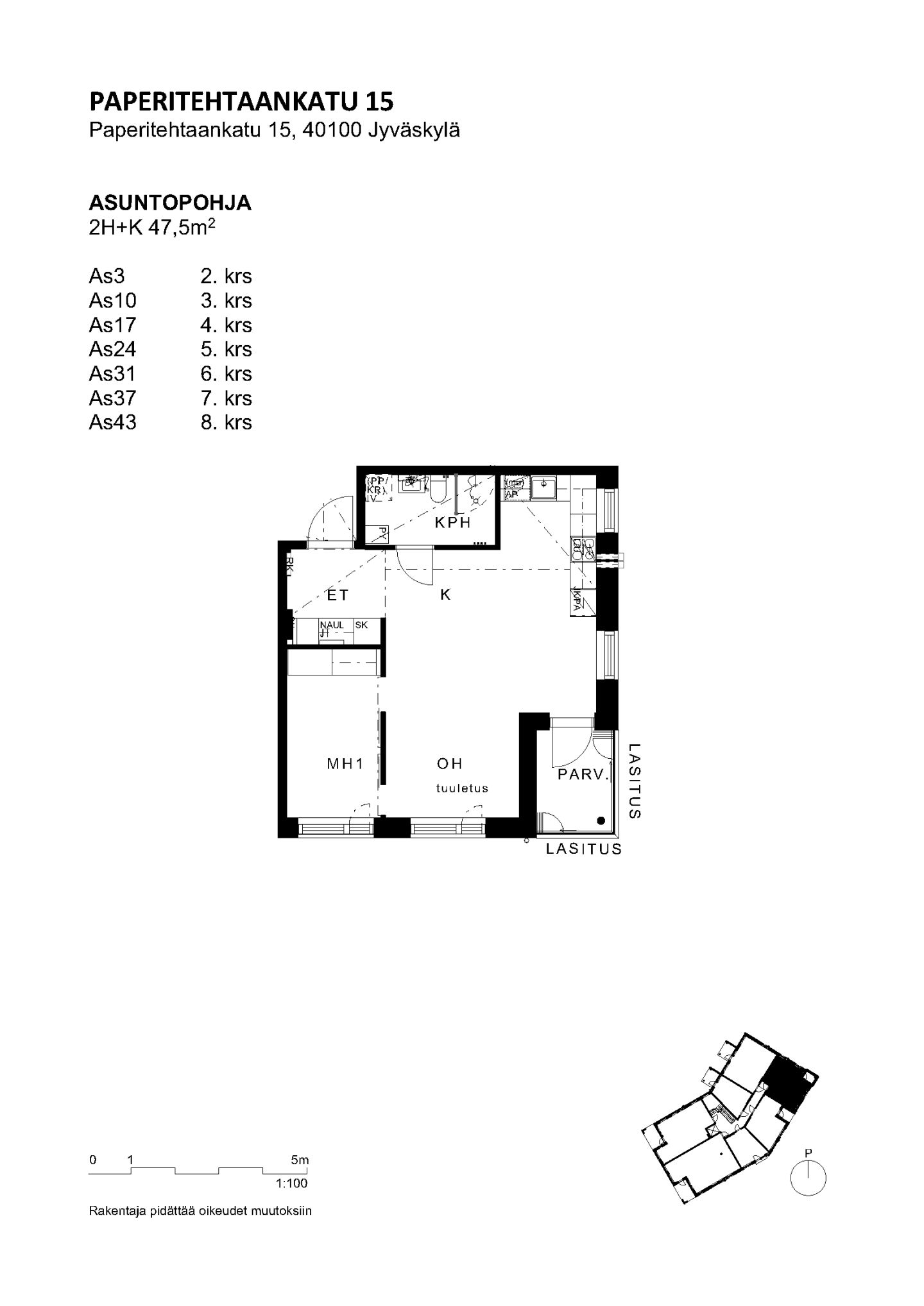
Jyväskylän Paperitehtaankatu 15:n asunnot ovat valtion tukemia vuokra-asuntoja, joissa noudatetaan tulorajoja asukasvalinnassa.