Ristonmaalla Jyväsjärven eteläpuolella rantaraitin tuntumassa sijaitseva luhtitaloyhtiö, josta löytyy erilaisia asuntoja eri elämäntilanteisiin.
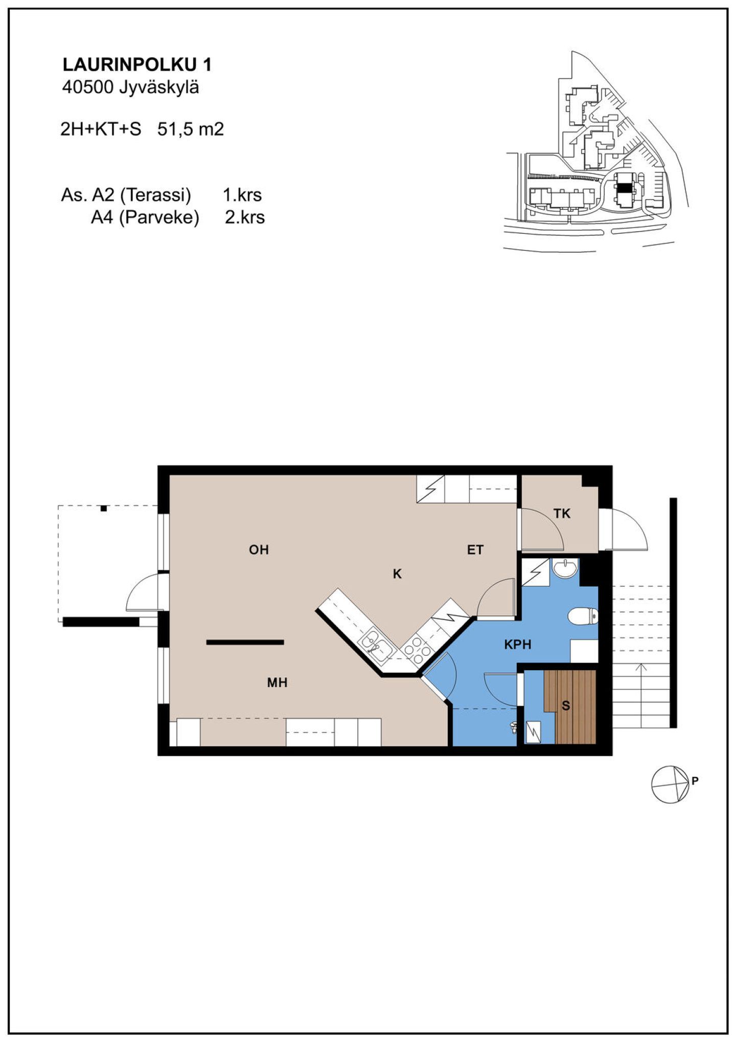
Saunallisten huoneistojen koot vaihtelevat tilavista 51,5 m² kaksioista isoihin 103,5 m² viiden huoneen perheasuntoihin. Huoneistoja on yhteensä 12 ja osa huoneistoista on kahdessa kerroksessa. Kohteen asunnot on uudistettu vuoden 2023 aikana kauttaaltaan ja asunnoista on remontoitu perusparannuksen yhteydessä nykyaikaisia ja hyvin varusteltuja.
Talon asukkailla on käytössään ulkoiluvälinevarasto ja huoneistokohtaiset varastot. Pihassa on lapsille leikkipaikka, jossa mm. keinu ja hiekkalaatikko. Parkkialueelta löytyy 12 autopaikkaa, joiden eParking-sähkötolpat mahdollistavat sähköauton hitaan latauksen (3,6 kW/h).
Liikunnan ystäville rantaraitti tarjoaa vehreitä lenkkeilymaastoja ja sen varrelta löytyy myös vesiurheilua mm. suppailun ja wakeboardingin harrastajille. Lähin golfkenttä puolestaan on noin kilometrin päässä. Kesäisin Alban rannalle voi istahtaa nauttimaan auringosta, talvella Jyväsjärven jää houkuttaa hiihtämään ja luistelemaan. Keljon markettien palvelut ovat reilun kilometrin ja keskustan palvelut reilun kahden kilometrin päässä. Laurinpolku 1:stä on hyvät kulkuyhteydet keskustaan: linja-autopysäkit sijaitsevat ihan kohteen vierestä ja rantaraittia hurauttaa nopeasti pyörällä kohti keskustaa.
Asumisoikeusasunnossa asut kohtuuhintaisessa asunnossa ja maksat kuukausittaista käyttövastiketta. Asumisoikeusasukkaana sinulla on pysyvä asumisturva. Pääset myös halutessasi remontoimaan kotiasi. Lemmikit ovat tervetulleita Avain Asuntoihin.