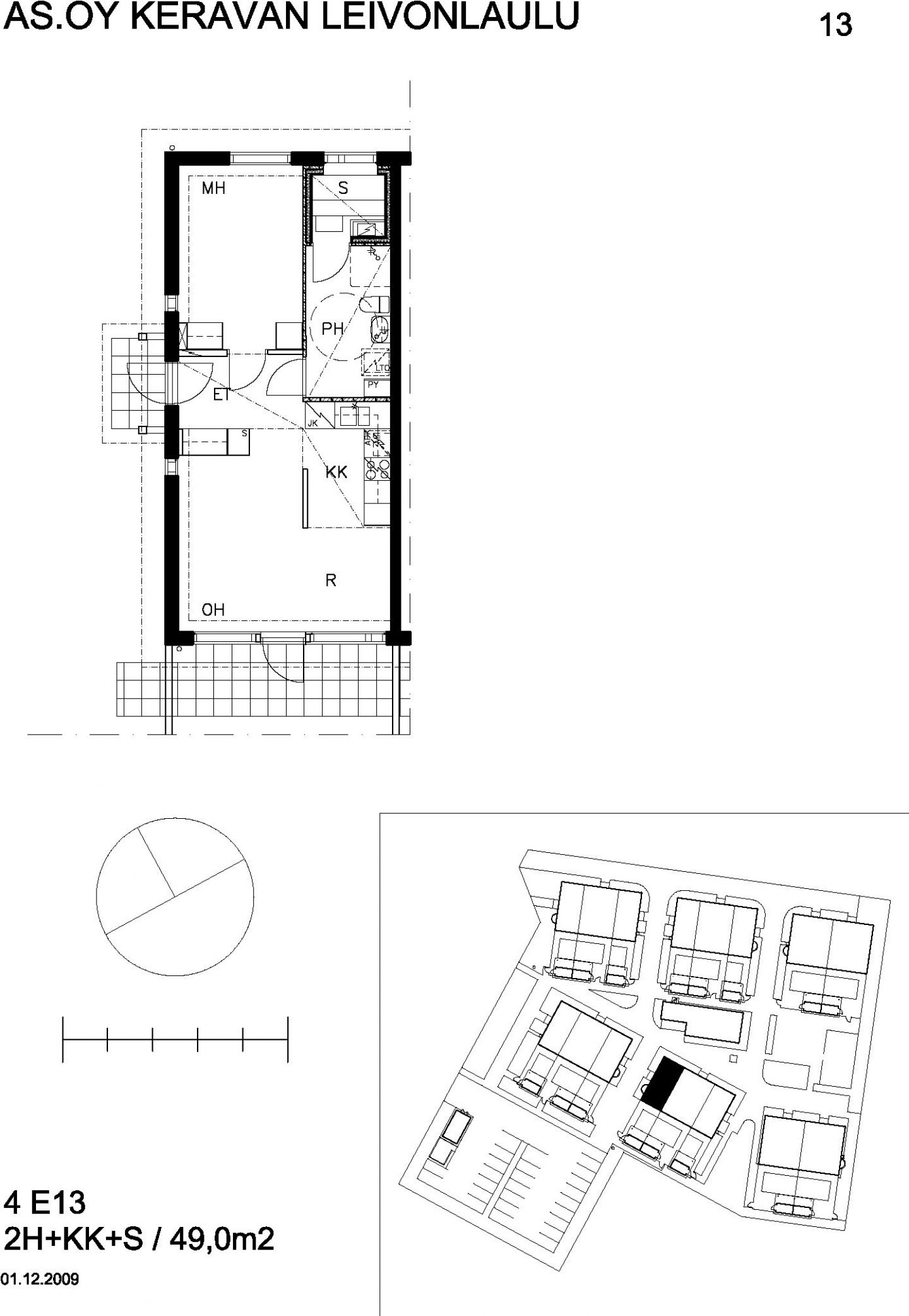
Nelikuja 4 E 13
Kohteen kuvaus
Rivitalon päätyasunto omalla, aidatulla pihalla.
Asunnon kuvaus
Rivitalon päätyasunto omalla, aidatulla pihalla.
Kohteen kuvaus
Ahjossa, Sorsakorven rauhallisella ja luonnonläheisellä alueella sijaitseva 2010 valmistunut pari-/rivitaloyhtiö.
Tästä 29 asunnon yhtiöstä löytyy asuntoja kaksioista neliöihin. Kaikissa asunnoissa on oma sauna ja piha. Asukkaiden käytössä maksuton nettiyhteys.
Yhteisessä käytössä on ulkoiluvälinevarasto.
Alueella erinomaiset harrastusmahdollisuudet, Keinukallion ulkoilukeskus, Keravan ratsastuskoulu, frisbeegolfrata sekä Talman rinteet lähellä. Loistavat palvelut Keravan keskustassa, jossa hypermarketti sekä lukuisia pienempiä liikkeitä. Kauppakeskus Karusellissa monipuolisia palveluja.
Keravan sekä Savion juna-asemat muutaman kilometrin päässä, josta pääset Helsinkiin puolessa tunnissa. Hyvien junayhteyksien lisäksi bussipysäkki on vain muutaman sadan metrin päässä kotiovelta.
Asumisoikeusasunnossa asut kohtuuhintaisessa asunnossa ja maksat kuukausittaista käyttövastiketta. Asumisoikeusasukkaana pääset remontoimaan myös kotiasi ja sinulla on pysyvä asumisturva. Lemmikit ovat tervetulleita Avain Asuntoihin.
Asunnon perustiedot
| Osoite | Nelikuja 4 E 13, 04220 Ahjo - Kerava |
|---|---|
| Huoneistotyyppi | 2H+KK+S |
| Asuintilojen pinta-ala | 49,0 m² |
| Kerros | 1/1 |
| Huoneistosauna | Kyllä |
| Irtainvarasto | Kyllä |
Hintatiedot
| Asumisoikeusmaksu | 25 875,44 € |
|---|---|
| Alkuperäinen ASO-maksu | 19 057,00 € |
| Indeksitarkistus | 6 818,44 € |
| Muutostyöt | 0,00 € |
| Vastike | 796,06 €/kk |
| Vesimaksutyyppi | Vesimaksu |
| Vesimaksu | 18,00 €/hlö/kk |
| Autopaikan hinta alkaen | 9,00 €/kk |
| Vakuus | 250,00 € |
| Tietoliikenneyhteydet | Taloyhtiölaajakaista Elisa 50/50 Mb/s sis. vastikkeeseen/vuokraan. |
- 040 640 4800
- asiakaspalvelu@avainyhtiot.fi
- Avain Asunnot, Lautatarhankatu 8 B, 00580 Helsinki
Kohteen perustiedot
| Kohteen nimi | Keravan Nelikuja 3 ja 4 |
|---|---|
| Osoite | Nelikuja 3, Nelikuja 4, 04220 Ahjo - KERAVA |
| Asumismuoto | Asumisoikeus |
| Rakennusvuosi | 2010 |
| Rakennuksen tyyppi | Rivitalo |
| Asuntoja | 29 |
| Kerroksia | 1 |
| Energialuokka | E (2012) |
| Lämmitysmuoto | Maakaasu |
| Tontin omistus | Oma |
| Antennijärjestelmä | Kaapeli-tv |
| Autopaikkoja yhteensä | 46 |
Kohteen yhteistilat
| Ulkoiluvälinevarasto |
|---|
| Väestönsuoja |
- 040 640 4800
- asiakaspalvelu@avainyhtiot.fi
- Avain Asunnot, Lautatarhankatu 8 B, 00580 Helsinki