Ukonhatunkuja 3 B 47
Kohteen kuvaus
Kirkkonummen merelliseen ja luonnonkauniiseen Sarvvikiin on valmistunut vuonna 2021 neljän kerrostalon kokonaisuus - yhteensä 114 uutta Avain vuokrakotia.
Näissä kodeissa on asumisen helppoutta ja asunnot sopivat hyvin eri elämäntilanteisiin. Kohteesta löytyy koteja aina yksiöistä neljän huoneen asuntoihin. Kaikki asunnot ovat viimeisen päälle niin varusteiltaan kuin materiaaleiltaankin. Vakiovarusteisiin kuuluu esimerkiksi erillisuuni ja astianpesukone. Lattiat ovat laminaattia ja parvekkeet tuttuun tapaan lasitettuja. Kohde on kokonaisuudessaan savuton.
Sarvvik on uusi ja nopeasti kehittyvä asuinalue aivan meren läheisyydessä Kirkkonummen ja Espoon rajalla. Ulkoilu, meri ja luonto ovatkin alueen ehdottomia valtteja. Saunalahden ja Kivenlahden monipuoliset palvelut sekä länsimetro ovat vain parin kilometrin päässä. Omalla autolla ajat suoraan Kirkkonummen keskustaan 15 minuutissa ja Helsingin keskustaankin noin puolessa tunnissa.
Kohde ja asunnot ovat savuttomia koko kiinteistön alueella. Asuntoihin ovat lemmikit tervetulleita.
Toistaiseksi voimassa oleva sopimus, kuitenkin vähintään 6 kk.
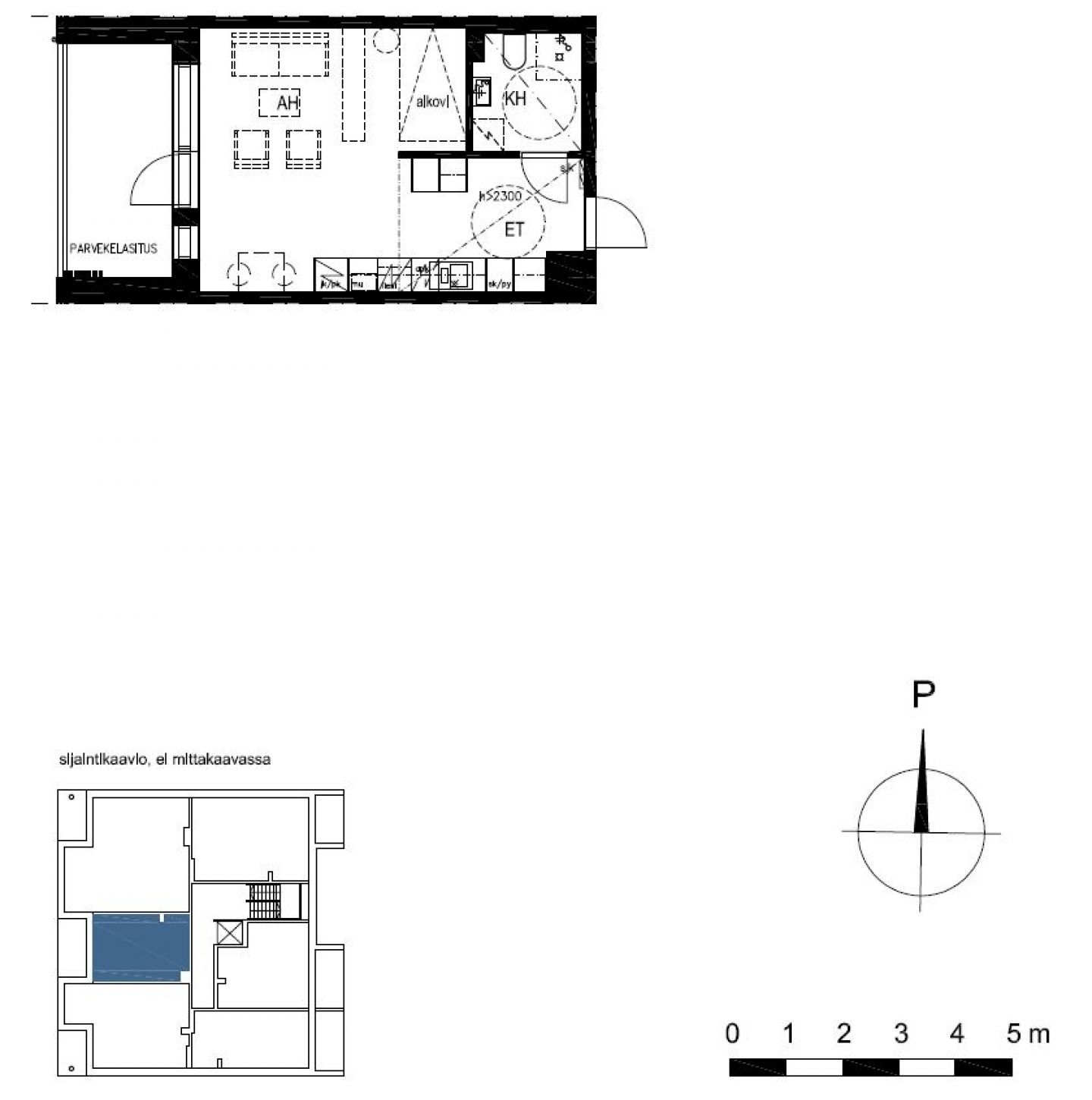
Asunnon perustiedot
| Osoite | Ukonhatunkuja 3 B 47, 02390 Sarvvik - Kirkkonummi |
|---|---|
| Huoneistotyyppi | 1H+KT |
| Asuintilojen pinta-ala | 31,5 m² |
| Kerros | 4 |
| Irtainvarasto | Kyllä |
Hintatiedot
| Vuokra | 615,00 €/kk |
|---|---|
| Vesimaksutyyppi | Vesiennakko |
| Vesimaksu | 25,00 €/hlö/kk |
| Autopaikan hinta alkaen | 42,00 €/kk |
| Vakuus | 250,00 € |
| Tietoliikenneyhteydet | Taloyhtiölaajakaista Elisa 50/50 Mb/s sis. vastikkeeseen/vuokraan. |
- 040 640 4800
- asiakaspalvelu@avainyhtiot.fi
- Avain Asunnot, Lautatarhankatu 8 B, 00580 Helsinki
Kohteen perustiedot
| Kohteen nimi | Sarvvikin Ukonhatunkuja 3 |
|---|---|
| Osoite | Ukonhatunkuja 3, 02390 Sarvvik - SARVVIK |
| Asumismuoto | Vuokrakohde |
| Rakennusvuosi | 2021 |
| Rakennuksen tyyppi | Kerrostalo |
| Savuton kohde | Kyllä |
| Hissi | Kyllä |
| Asuntoja | 58 |
| Kerroksia | 7 |
| Energialuokka | B (2018) |
| Lämmitysmuoto | Kaukolämpö |
| Tontin omistus | Oma |
| Antennijärjestelmä | Kaapeli-tv |
| Autopaikkoja yhteensä | 59 |
| Autohallipaikkoja lämmin | 55 |
Kohteen yhteistilat
| Talosauna |
|---|
| Pesutupa |
| Kuivaushuone |
| Ulkoiluvälinevarasto |
| Väestönsuoja |
- 040 640 4800
- asiakaspalvelu@avainyhtiot.fi
- Avain Asunnot, Lautatarhankatu 8 B, 00580 Helsinki