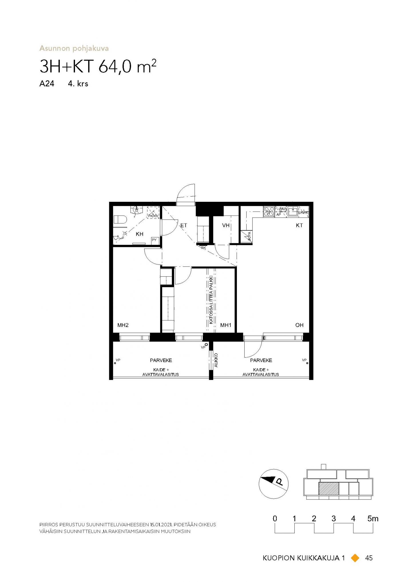
Kuikkakuja 1 A 24

Vuokra Valmistunut 2022 Heti vapaa Kerrostalo Kohde-esite Tulorajat