Arvostatko teatterin, kirjaston ja kaupungin palveluiden läheisyyttä? Haluatko silti asua hieman syrjässä keskustan hulinasta? Lahden Paavolan asunto on sinulle oikea valinta!
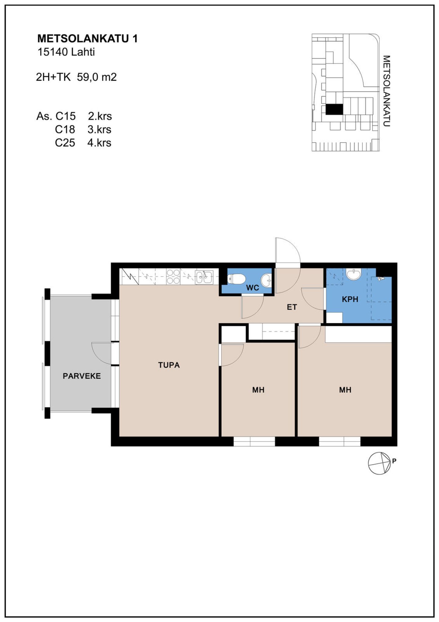
Asuntojen kylpyhuoneet on tasokkaasti remontoitu ja laatoitettu vuoden 2015 valmistuneen perusparannusremontin aikana. Metsolankadun suositusta kohteesta löytyy asuntoja pienimmistä 38 m2 tehokkaista yksiöistä aina 89,5 m2 perheasuntoihin.
Saunominen on myös vaivatonta, pääset hissillä oman rappusi pesutiloihin, ylimmästä kerroksesta löytyy viehättävä yhteissauna sekä vilvoitteluparveke. Voit varata itsellesi sopivan saunavuorosi kohtuulliseen hintaan. Auton pysäköinti onnistuu taloyhtiön yhteiseen, katettuun autohalliin, tai pihalle oman asunnon läheisyyteen. Veloituksetta pääset pesemään pyykkisi yhtiön yhteisessä pesutuvassa, joka sijaitsee Lahden Töyrykulman alakerrassa. Pesutuvasta löytyy reilusti tilaa, isot pesukoneet, kuivausrummut ja mankelit ovat veloituksetta käytettävissäsi. Pyykit voit kuivattaa oman rappukäytäväsi alakerrassa sijaitsevassa kuivaushuoneessa.
Naapurista löytyy myös toimintakeskus Wanha Herra, jossa voit käydä vaikkapa ruokailemassa. Lahden keskusta on vain kilometrin päässä laajoine palveluineen. Paavolan kohteiden ASO-maksu on vain 10%, joten pääset edullisesti asumaan keskustan tuntumaan!
Asumisoikeusasunnossa asut kohtuuhintaisessa asunnossa ja maksat kuukausittaista käyttövastiketta. Asumisoikeusasukkaana pääset halutessasi remontoimaan kodistasi oman näköisen. Sinulla on myös pysyvä asumisturva. Lemmikit ovat tervetulleita Avain Asuntoihin!