Upealla sijainnilla, Muuramen Kirkonmäellä sijaitseva viihtyisä rivi- ja paritaloyhtiö. Luonnonläheinen ja vehreä asuinpaikka Päijänteen, Muuratjärven ja Muuramenjoen ympäröimänä, aivan Muuramen keskustan tuntumassa.
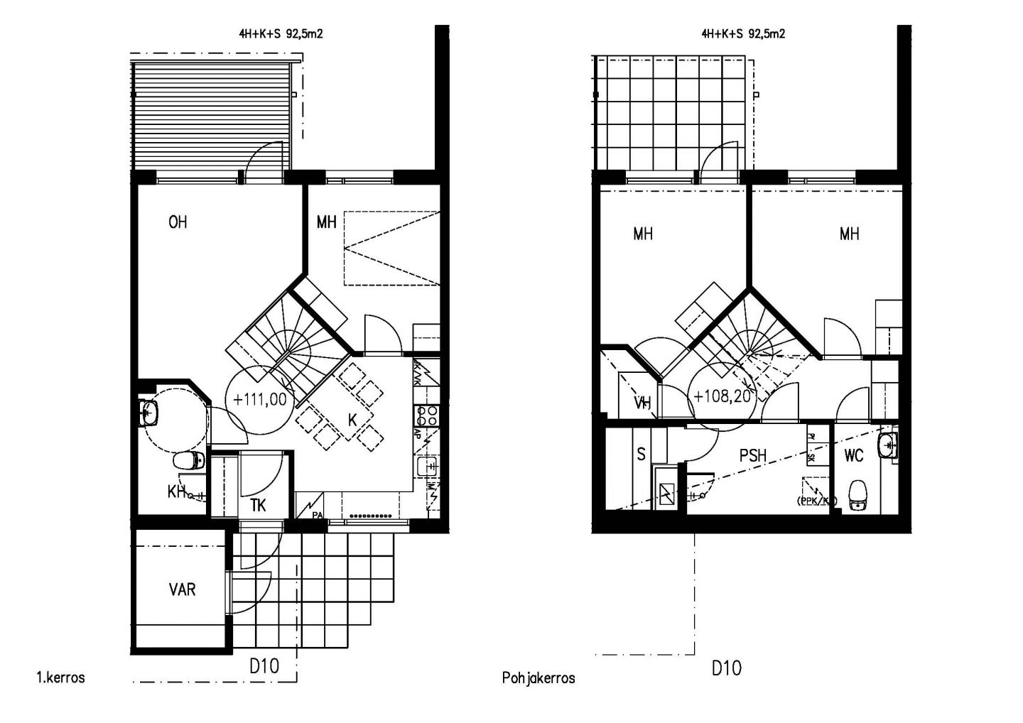
Kohteen kaikki 15 asuntoa on uudistettu perusparannuksen yhteydessä vuonna 2021, ja asunnot ovat nykyaikaisia ja hyvin varusteltuja: keittiössä on mm. keraaminen liesi ja astianpesukone, lattiat ovat laminaattia ja kylpyhuoneet on uudistettu ja laatoitettu kokonaan. Valoisat huoneet ja vaaleat pinnat tekevät asunnoista avaria. Kaikissa asunnoissa on oma sauna ja terassi, jossa on mukava juoda aamukahvit ja nauttia kesäpäivistä. Perusparannuksen yhteydessä taloyhtiö on siirtynyt maalämpöön.
Yhteinen piha-alue on viihtyisä ja suojaisa, lapsille on leikkipaikka ja runsaasti tilaa pelata ja juosta. Sähkötolpallisia autopaikkoja on 15, pari autopaikkaa löytyy myös vieraiden pysäköintiin. Talon asukkailla on käytössään talovarasto ja huoneistokohtaiset kylmät varastot huoneiston sisäänkäynnin vieressä.
Muuramen kouluun, lukioon ja uimahalliin on kilometrin matka, ja S-market, K-supermarket ja Lidl löytyvät kaikki muutaman kilometrin säteeltä. Lähialueella on kauniita ulkoilumaastoja, joissa on mukava lenkkeillä ja liikkua koiran kanssa. Jyväskylän keskustaan on 15 kilometriä, jonne hurauttaa näppärästi autolla ja linja-autollakin matka sujuu nopeimmillaan reilussa puolessa tunnissa.
Asumisoikeusasunnossa asut kohtuuhintaisessa asunnossa ja maksat kuukausittaista käyttövastiketta. Asumisoikeusasukkaana sinulla on pysyvä asumisturva. Pääset myös halutessasi remontoimaan kotiasi. Lemmikit ovat tervetulleita Avain Asuntoihin.
Keväällä 2021 perusparannettu huoneisto.