Tilkankuja 1 C 36
Kohteen kuvaus
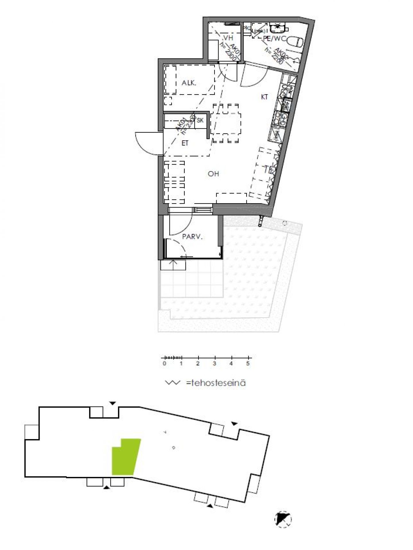
Ensimmäisessä kerroksessa sijaitseva 34,0 m² yksiö. Asunnossa on toimiva pohjaratkaisu, alkovi, vaatehuone sekä lasitettu terassiparveke. Kokonaisuuden viimeistelevät tyylikkäät materiaalivalinnat.
Asunnon kuvaus
Ensimmäisessä kerroksessa sijaitseva 34,0 m² yksiö. Asunnossa on toimiva pohjaratkaisu, alkovi, vaatehuone sekä lasitettu terassiparveke. Kokonaisuuden viimeistelevät tyylikkäät materiaalivalinnat.
Kohteen kuvaus
Nurmijärven Klaukkalaan on valmistunut vuonna 2022 uusia asumisoikeuskoteja osoitteeseen Tilkankuja 1.
Kohteesta löytyy 75 erikokoista ja toimivapohjaista ratkaisua eri elämäntilanteisiin. Hyvin varustelluista asunnoista löytyy laminaattilattia, kaakeloidut kylpyhuoneet, parvekelasitus, sälekaihtimet, keraaminen liesi, erillisuuni sekä astianpesukone. Asumisoikeuskotien materiaaleissa ja väreissä on otettu huomioon nykyajan trendit. Kohde on savuton.
Asumismukavuutta tuo lisäksi yhteinen leikki- ja liikunta-alue sekä oleskelualue asukkaiden yhteiseen käyttöön ja ajanviettoon. Taloyhtiöllä on myös yhteinen saunatila sekä kuivaushuone.
Klaukkala on Nurmijärven kunnan eteläisin ja isoin taajama. Ali-Tilkan asuinalue sijaitsee kävelymatkan päässä Klaukkalan monipuolisista palveluista ja alue mahdollistaa hyvät ulkoilu- ja harrastusmahdollisuudet. Läheltä löytyvät jalkapallokenttä ja -halli, jäähalli, tennishalli ja yleisurheilukenttä. Alueen lähituntumasta löytyvät myös koulut, päiväkodit ja terveyspalvelut. Uusi upea monitoimitalo Monikko tarjoaa kulttuuriesityksiä ja tapahtumia.
Klaukkalasta on erinomaiset kulkuyhteydet pääkaupunkiseudulle niin omalla autolla kuin julkisilla yhteyksilläkin.
Asumisoikeusasunnossa asut kohtuuhintaisessa asunnossa ja maksat kuukausittaista käyttövastiketta. Asumisoikeusasukkaana sinulla on pysyvä asumisturva. Pääset halutessasi myös remontoimaan kotiasi. Lemmikit ovat tervetulleita Avain Asuntoihin.
Asunnon perustiedot
| Osoite | Tilkankuja 1 C 36, 01800 Klaukkala - Nurmijärvi |
|---|---|
| Huoneistotyyppi | 1H+KT |
| Asuintilojen pinta-ala | 34,0 m² |
| Kerros | 1 |
| Irtainvarasto | Kyllä |
Hintatiedot
| Asumisoikeusmaksu | 18 062,76 € |
|---|---|
| Alkuperäinen ASO-maksu | 17 384,48 € |
| Indeksitarkistus | 678,28 € |
| Muutostyöt | 0,00 € |
| Vastike | 478,05 €/kk |
| Vesimaksutyyppi | Vesiennakko |
| Vesimaksu | 20,00 €/hlö/kk |
| Autopaikan hinta alkaen | 22,00 €/kk |
| Vakuus | 250,00 € |
| Tietoliikenneyhteydet | Taloyhtiölaajakaista Elisa 50/50 Mb/s sis. vastikkeeseen/vuokraan. |
- 040 640 4800
- asiakaspalvelu@avainyhtiot.fi
- Avain Asunnot, Lautatarhankatu 8 B, 00580 Helsinki
Kohteen perustiedot
| Kohteen nimi | Klaukkalan Tilkankuja 1 |
|---|---|
| Osoite | Tilkankuja 1, 01800 Klaukkala - Klaukkala |
| Asumismuoto | Asumisoikeus |
| Rakennusvuosi | 2022 |
| Rakennuksen tyyppi | Kerrostalo |
| Savuton kohde | Kyllä |
| Hissi | Kyllä |
| Asuntoja | 75 |
| Kerroksia | 5 |
| Energialuokka | B (2018) |
| Lämmitysmuoto | Kaukolämpö |
| Antennijärjestelmä | Kaapeli-tv |
| Autopaikkoja yhteensä | 65 |
| Autokatospaikkoja lämmin | 41 |
Kohteen yhteistilat
| Talosauna |
|---|
| Kuivaushuone |
| Ulkoiluvälinevarasto |
| Huoneistokohtaiset varastot |
| Väestönsuoja |
- 040 640 4800
- asiakaspalvelu@avainyhtiot.fi
- Avain Asunnot, Lautatarhankatu 8 B, 00580 Helsinki