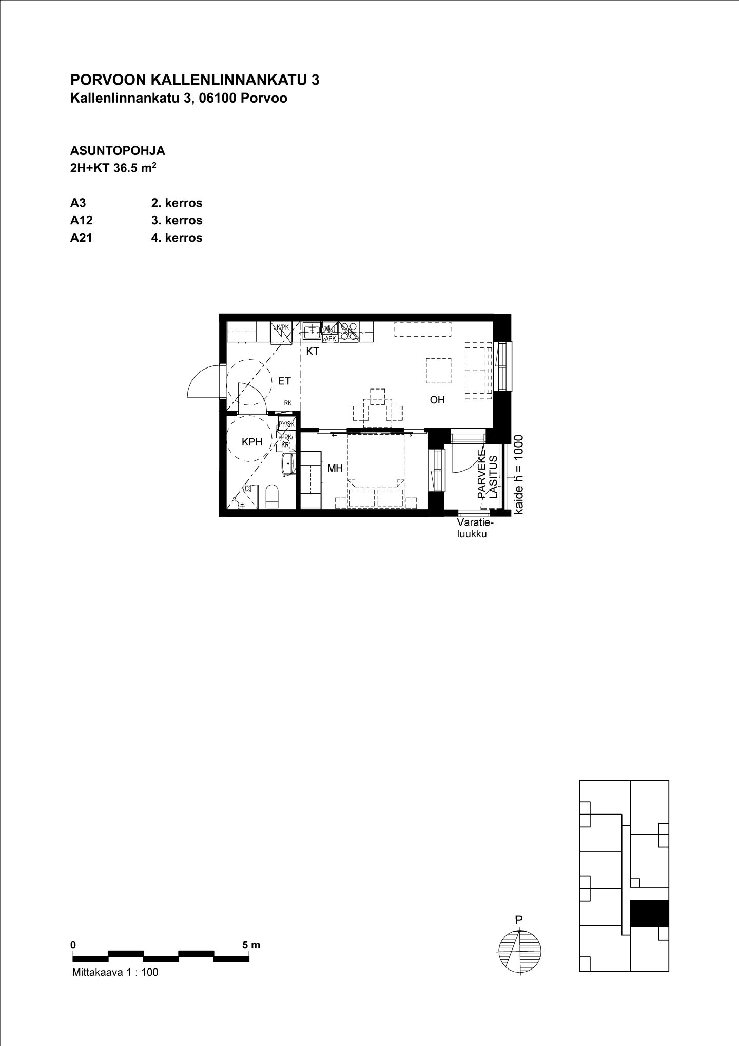
Kallenlinnankatu 3 A 21

Vuokra Arvioitu valmistuminen 26.6.2026 Vapautuu 26.6.2026 Kerrostalo Tulorajat