Kohde sijaitsee Sipoon luonnonläheisissä maisemissa lähellä Nikkilän palveluita.
Huoneistot on suunniteltu raikkaalla ajatuksella siitä, että asuminen voi olla helppoa. Pohjaratkaisuja löytyy moneen tarpeeseen, sillä vaihtoehtoja on kaksioista kompakteihin viiden huoneen perheasuntoihin. Suomalaiset rakastavat saunomista, joten sauna löytyykin jokaisesta asunnosta! Näiden asumisoikeuskotien materiaaleissa ja väreissä on otettu huomioon nykyajan trendit. Tasokkaasti varustelluissa asunnoissa on laminaattilattia, kaakeloitu kylpyhuone, sälekaihtimet, keraaminen liesi sekä astianpesukone. Alimman kerroksen asunnoissa on maantasoterassit, toisen kerroksen asunnoissa on parvekematoilla varustetut lasitetut parvekkeet. Kohde on savuton ja tupakointi on kielletty koko kiinteistön alueella.
Irtaimisto- ja ulkoiluvälinevarastot sijaitsevat erillisessä talousrakennuksessa.
Luonnonläheisen maiseman lisäksi uusi asuinalue on aivan Nikkilän keskustan tuntumassa. Niin ruotsin- kuin suomenkielisetkin koulut ala-asteesta lukioon sijaitsevat lähietäisyydellä ja kaikki tarvittavat peruspalvelut ovat kävelymatkan päässä. Kymmenen minuutin ajomatkan päässä sijaitsee Talman laskettelukeskus ja Keinukallio, josta juoksuportaiden lisäksi löytyy frisbeegolfrata ja talvisin upeat hiihtoladut. Lämpiminä päivinä Pilvijärven uimarannalle ajaa hetkessä ja Sipoonkorven kansallispuistosta löytyy upeita ulkoilupaikkoja jokaisena vuodenaikana.
Sipoon palveluiden lisäksi lähikaupunkeihin on näppärät etäisyydet. Porvooseen ajaa puolessa tunnissa ja Helsinkiin vain hieman pidempään. Bussi kulkee kätevästi aivan talon edustalta aina Helsingin keskustaan saakka.
Asumisoikeusasunnossa asut kohtuuhintaisessa asunnossa ja maksat kuukausittaista käyttövastiketta. Asumisoikeusasukkaana pääset remontoimaan myös kotiasi ja sinulla on pysyvä asumisturva. Lemmikit ovat tervetulleita Avain Asuntoihin.
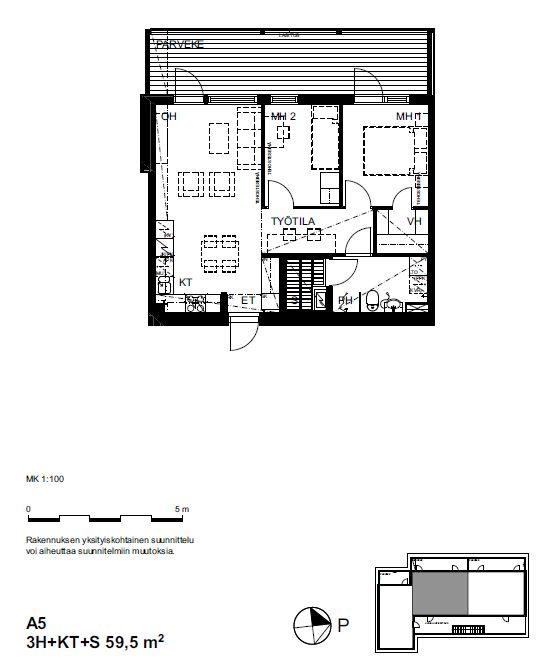
Luhtitalon toisen kerroksen asunto, lasitettu parveke.