Mäntymäentie 1 as 30
Kohteen kuvaus
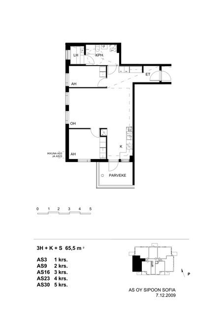
Viidennen kerroksen kulmahuoneisto, jossa lasitettu parveke.
Kohteen kuvaus
Söderkullan keskustan tuntumassa luonnonläheisellä alueella sijaitseva kerrostaloyhtiö.
Lasitetut parvekkeet tuovat valoisaa lisätilaa asuntoihin ja laminaattilattiat sekä kylpyhuoneiden laatoitus lisäävät asumisviihtyvyyttä. Asukkaiden käytössä maksuton nettiyhteys.
Söderkullan viihtyisä, lapsiystävällinen ja kaunis asuinalue tarjoaa kattavat päivittäispalvelut sekä upeat ulkoilumaastot. Kaikki tarvittava ruokakaupoista apteekkiin ovat alle kilometrin päässä. Monipuolisia liikkumismahdollisuuksia tarjoavat viereisen Taasjärven hienot lenkkeily- ja hiihtomaastot, uimaranta ja avantouintipaikka.
Autolla Helsingin ja Porvoon keskustaan ajaa jopa 20 minuutissa, myös julkinen liikenne on sujuvaa. Lähimmälle bussipysäkille on vain 200 m matka.
Asumisoikeusasunnossa asut kohtuuhintaisessa asunnossa ja maksat kuukausittaista käyttövastiketta. Asumisoikeusasukkaana pääset remontoimaan myös kotiasi ja sinulla on pysyvä asumisturva. Lemmikit ovat tervetulleita Avain Asuntoihin.
Viidennen kerroksen kulmahuoneisto, jossa lasitettu parveke.
Asunnon perustiedot
| Osoite | Mäntymäentie 1 as 30, 01150 Söderkulla - Sipoo |
|---|---|
| Huoneistotyyppi | 3H+K+S |
| Asuintilojen pinta-ala | 65,5 m² |
| Kerros | 5/6 |
| Huoneistosauna | Kyllä |
| Irtainvarasto | Kyllä |
Hintatiedot
| Asumisoikeusmaksu | 33 496,87 € |
|---|---|
| Alkuperäinen ASO-maksu | 25 127,00 € |
| Indeksitarkistus | 8 369,87 € |
| Muutostyöt | 0,00 € |
| Vastike | 931,30 €/kk |
| Ensi vuoden vastike | 962,79 €/kk |
| Vesimaksutyyppi | Vesimaksu |
| Vesimaksu | 19,00 €/hlö/kk |
| Autopaikan hinta alkaen | 20,00 €/kk |
| Vakuus | 250,00 € |
| Tietoliikenneyhteydet | Taloyhtiölaajakaista Elisa 50/50 Mb/s sis. vastikkeeseen/vuokraan. |
- 040 640 4800
- asiakaspalvelu@avainyhtiot.fi
- Avain Asunnot, Lautatarhankatu 8 B, 00580 Helsinki
Kohteen perustiedot
| Kohteen nimi | Söderkullan Mäntymäentie 1 |
|---|---|
| Osoite | Mäntymäentie 1, 01150 Söderkulla - SÖDERKULLA |
| Asumismuoto | Asumisoikeus |
| Rakennusvuosi | 2010 |
| Rakennuksen tyyppi | Kerrostalo |
| Hissi | Kyllä |
| Asuntoja | 36 |
| Kerroksia | 6 |
| Energialuokka | F (2012) |
| Lämmitysmuoto | Kaukolämpö |
| Tontin omistus | Oma |
| Antennijärjestelmä | Kaapeli-tv |
| Autopaikkoja yhteensä | 58 |
Kohteen yhteistilat
| Kuivaushuone |
|---|
| Ulkoiluvälinevarasto |
| Väestönsuoja |
- 040 640 4800
- asiakaspalvelu@avainyhtiot.fi
- Avain Asunnot, Lautatarhankatu 8 B, 00580 Helsinki