Heittoniitynkuja 6 C 084
Kohteen kuvaus
Asumisoikeuskoteja Hervantajärven kehittyvällä alueella.
Syyskuussa 2022 valmistunut Avain Asuntojen kohde tarjoaa modernia ja viihtyisää asumista Hervantajärvellä, aivan raitiovaunun päätepysäkin tuntumassa.
Tämä savuton taloyhtiö koostuu 70 huolella suunnitellusta asunnosta, joiden huoneistojakauma kattaa yksiöitä, kaksioita, kolmioita sekä kaksi tilavaa neljän huoneen kotia – jokaiselle löytyy sopiva vaihtoehto.
Asunnot on varusteltu laadukkaasti: induktiotasot, kalusteuunit, astianpesukoneet, sälekaihtimet ja laatoitetut kylpyhuoneet tekevät arjesta sujuvaa. Lasitetut parvekkeet ja terassit tuovat lisämukavuutta ja mahdollistavat ulkoilun ympäri vuoden.
Taloyhtiön yhteiset tilat tarjoavat arjen luksusta – käytössäsi ovat sauna, kuivaushuone sekä huoneistokohtaiset irtainvarastot. Sisäpihalle rakentuu viihtyisä yhteispiha, jossa on leikki- ja oleskelualue sekä pyörävarastot.
Autoilijoille on tarjolla 34 sähköpistokkein varustettua autopaikkaa, jotka mahdollistavat myös sähköauton hitaan latauksen.
Hervantajärvi on alueena ainutlaatuinen: lähiluonto ja uimaranta ovat aivan kotioven tuntumassa, ja Hervannan monipuoliset palvelut, kuten jäähalli ja uimahalli, sijaitsevat vain parin kilometrin päässä. Tampereen keskustaan pääset ratikalla vaivattomasti noin 20 minuutissa.
Lemmikit ovat lämpimästi tervetulleita Avain Asuntoihin.
Asunnon perustiedot
| Osoite | Heittoniitynkuja 6 C 084, 33720 Hervantajärvi - Tampere |
|---|---|
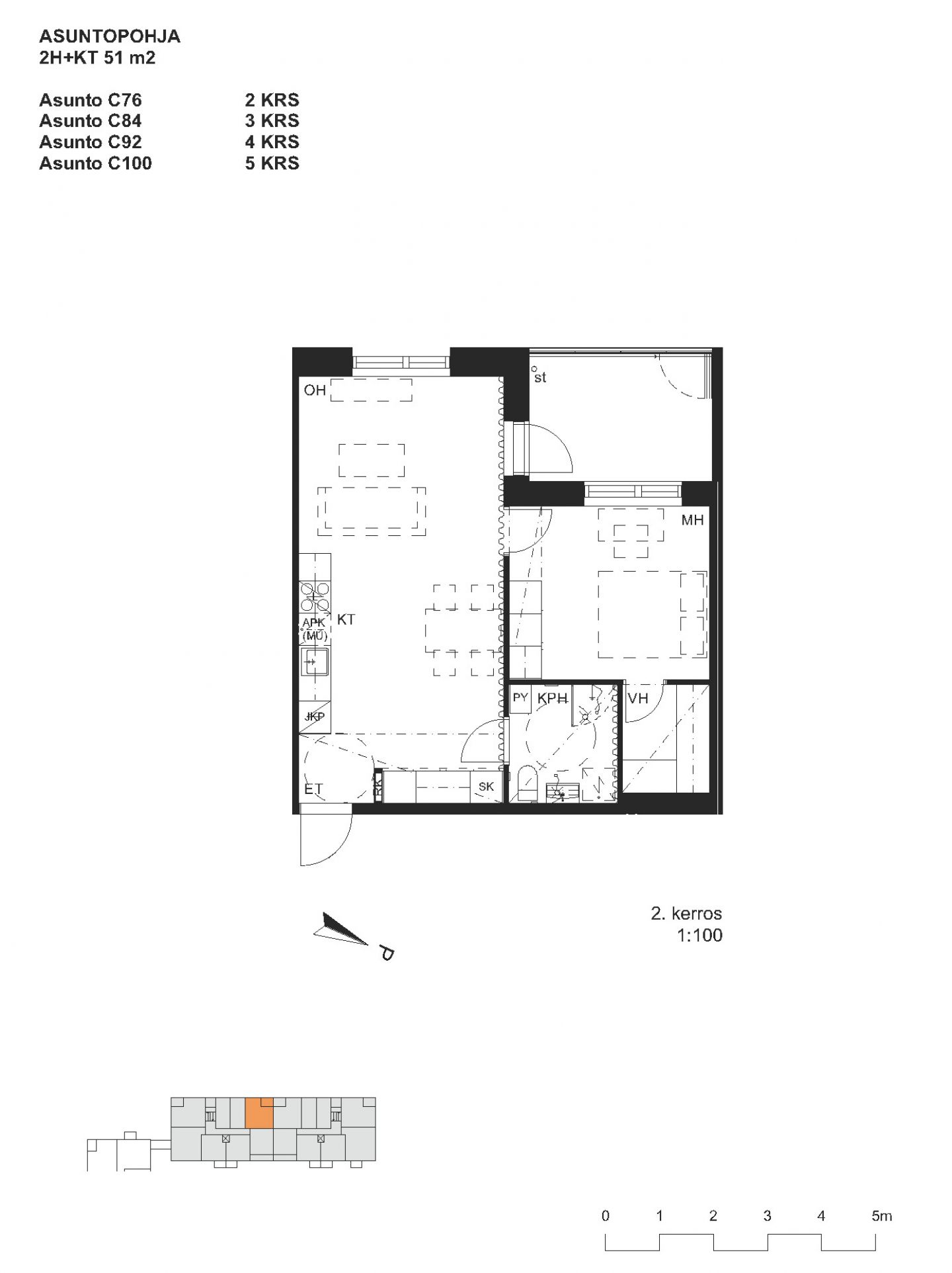
| Huoneistotyyppi | 2H+KT |
| Asuintilojen pinta-ala | 51,0 m² |
| Kerros | 3/5 |
| Irtainvarasto | Kyllä |
Hintatiedot
| Asumisoikeusmaksu | 25 850,26 € |
|---|---|
| Alkuperäinen ASO-maksu | 23 700,30 € |
| Indeksitarkistus | 2 149,96 € |
| Muutostyöt | 0,00 € |
| Vastike | 676,00 €/kk |
| Ensi vuoden vastike | 693,16 €/kk |
| Vesimaksutyyppi | Vesiennakko |
| Vesimaksu | 20,00 €/hlö/kk |
| Autopaikan hinta alkaen | 22,00 €/kk |
| Vakuus | 250,00 € |
| Tietoliikenneyhteydet | Taloyhtiölaajakaista Elisa 50/50 Mb/s sis. vastikkeeseen/vuokraan. |
- 040 640 4800
- asiakaspalvelu@avainyhtiot.fi
- Avain Asunnot, Hatanpään valtatie 24, 33100 Tampere
Kohteen perustiedot
| Kohteen nimi | Tampereen Heittoniitynkuja 6 C-D |
|---|---|
| Osoite | Heittoniitynkuja 6 C-D, 33720 Hervantajärvi - Tampere |
| Asumismuoto | Asumisoikeus |
| Rakennusvuosi | 2022 |
| Rakennuksen tyyppi | Kerrostalo |
| Savuton kohde | Kyllä |
| Hissi | Kyllä |
| Asuntoja | 70 |
| Kerroksia | 5 |
| Energialuokka | A (2018) |
| Lämmitysmuoto | Maalämpö |
| Tontin omistus | Vuokra |
| Antennijärjestelmä | Kaapeli-tv |
| Autopaikkoja yhteensä | 34 |
| Autokatospaikkoja lämmin | 12 |
Kohteen yhteistilat
| Talosauna |
|---|
| Kerhohuone |
| Kuivaushuone |
| Ulkoiluvälinevarasto |
| Väestönsuoja |
- 040 640 4800
- asiakaspalvelu@avainyhtiot.fi
- Avain Asunnot, Hatanpään valtatie 24, 33100 Tampere