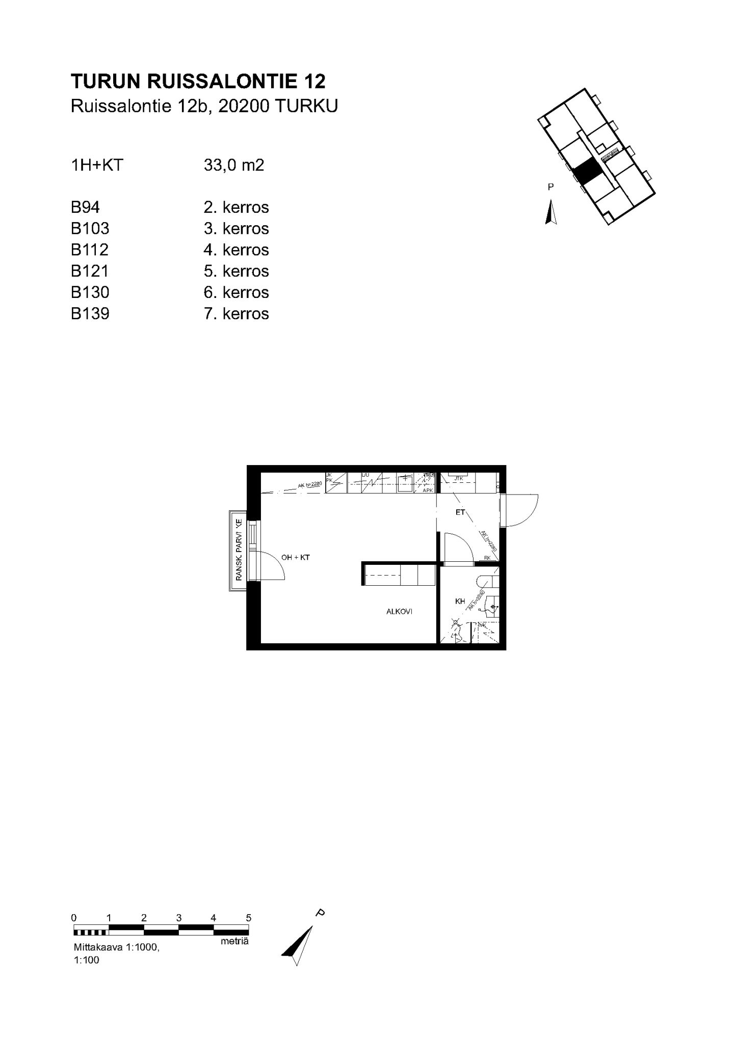
Ruissalontie 12b B 121

Vuokra Arvioitu valmistuminen 17.6.2026 Vapautuu 17.6.2026 Kerrostalo Tulorajat