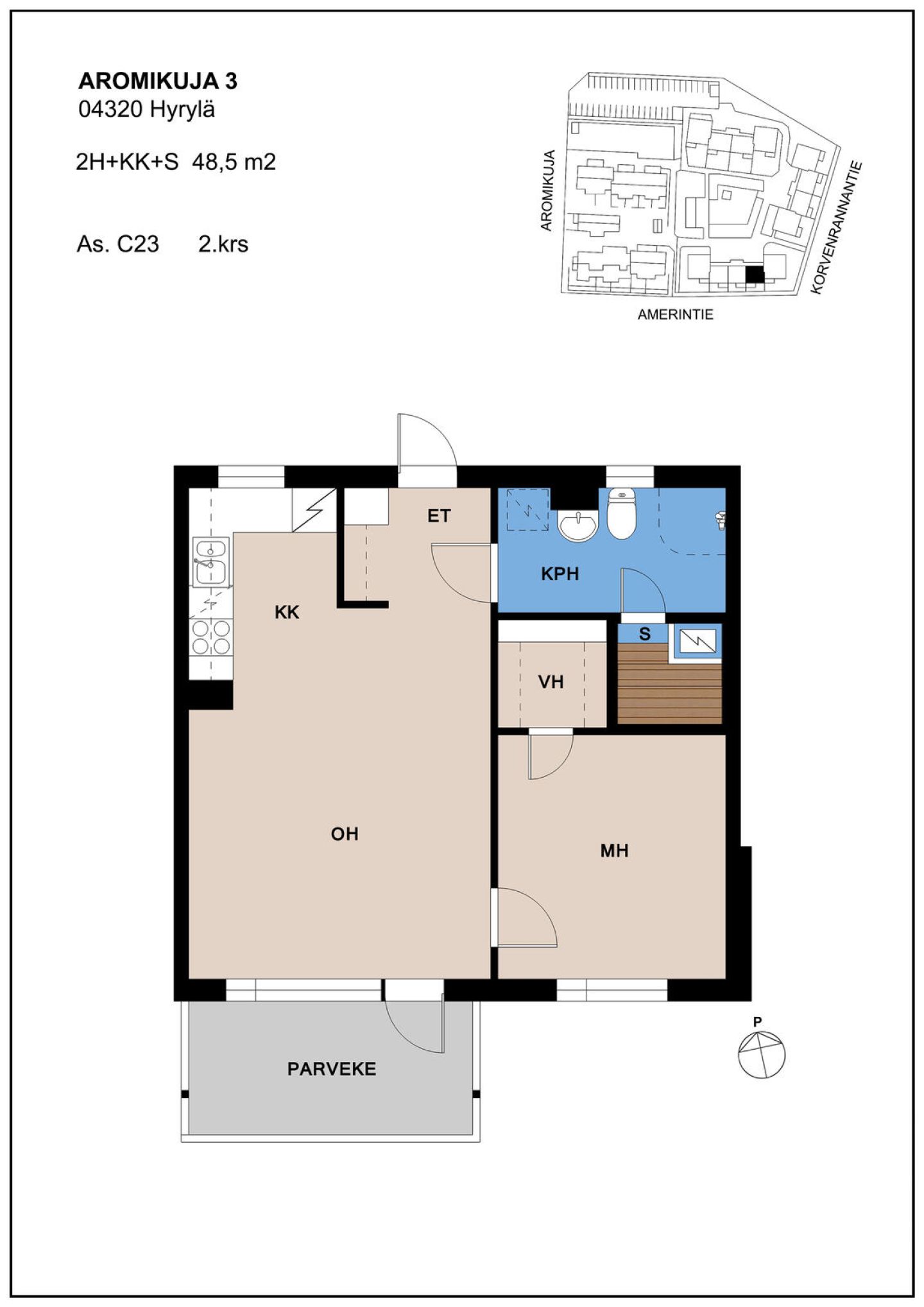
Aromikuja 3 C 23

ASO Valmistunut 2004 Vapautuu 29.4.2026 Luhtitalo