Vuokra
Valmistunut 2021Vapautuu 1.4.2026
Kerrostalo
Kohde-esite
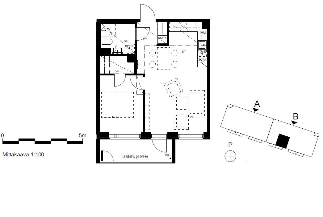
2H+KT, 45,5 m²
Vuokra
795,00 €/kk
Kohteen kuvaus
Tuusulan Rykmentin puistotie 11 sijaitsee Hyrylän entisellä kasarmialueella, upeiden ulkoilumaastojen läheisyydessä.
Kohteeseen on valmistunut 76 modernia vuokrakotia vuonna 2021.
Rykmentinpuistoon rakentuu lähivuosina koti noin 15 000 asukkaalle. Kattavat peruspalvelut ja mm. Keski-Uudenmaan suurin urheilukeskus löytyvät kävelymatkan päästä. Lähimmät koulut sijaitsevat noin 1,5 km päässä. Alueelle on tulossa uusia päiväkoteja, peruskoulu sekä lukio. Tuusulan julkinen liikenne toimii HSL-alueella.
Kohteesta löytyy ihania koteja näppäristä yksiöistä aina isompiin perheasuntoihin. Nämä valoisat ja toimivapohjaiset asunnot ovat huolellisesti suunniteltuja ja helppo sisustaa oman tyylin mukaisesti. Kaikkien asuntojen vakiovarusteisiin kuuluu astianpesukone. Lattiat ovat laminaattia ja parvekkeet lasitettuja. Kylpyhuoneissa on mukavuuslattialämmitys.
Taloyhtiö on savuton. Asuntoihin ovat lemmikit tervetulleita.
Täytä asuntohakemus kotisivuilla ja mikäli voimme tarjota sinulle asuntoa, saat tarjouksen sähköpostiisi.
Toistaiseksi voimassa oleva sopimus, kuitenkin vähintään 6 kk.
Tarkistamme hakijoiden luottotiedot Suomen Asiakastieto Oy:n tietokannasta.
Asunnon perustiedot
Osoite
Rykmentin puistotie 11 B 47, 04300 Hyrylä - Tuusula