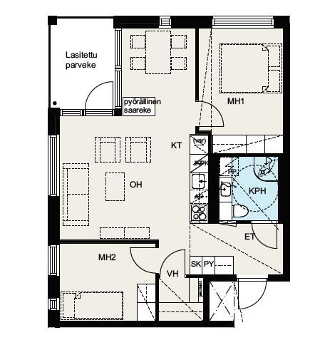
Kaivokselantie 5 G 04

ASO 27.2.2026 Kerrostalo