Keimolan uudelle asuinalueelle on valmistunut vuonna 2023 Avain-asumisoikeuskoteja - pohjaratkaisuja löytyy tehokkaista yksiöistä tyylikkäisiin perheasuntoihin.
Tasokkaasti varustelluissa asunnoissa on laminaattilattia, kaakeloidut kylpyhuoneet, sälekaihtimet, keraaminen lattialiesi sekä astianpesukone. Kolmioissa on tilavaraus toiselle täyskorkealle kylmälaitteelle. Neliöissä täyskorkea jääkaappi ja pakastin, muissa asuntotyypeissä jääpakastinkaappi. Parvekkeet lasitettu.
Asumisoikeuskotien materiaaleissa ja väreissä on otettu huomioon nykyajan trendit.
Yhtiöllä on 46 autopaikkaa omalla tontilla ja 64 paikkaa viereisessä pysäköintihallissa. Lisäksi neljä LE-autopaikkaa omalla pihalla. Kaikki autopaikat on varustettu sähköautolatauspistokkein ja mahdollistavat ladattavan hybridin tai sähköauton hitaan latauksen.
Kohde on täysin savuton ja tupakointi sekä sähkösavukkeiden käyttö on kielletty myös parvekkeilla ja koko kiinteistön alueella.
Lemmikit ovat tervetulleita Avain Asuntoihin.
Lämpimät irtaimistovarastot, ulkoiluvälinevarastot, tekniset tilat, pesula, kuivaushuone, monitoimitila ja saunaosasto sijaitsevat maantasossa 1. kerroksessa. Lisäksi 12. kerroksessa sijaitsee toinen saunaosasto.
Kivistön kaupunginosan keskustaan, jossa sijaitsee lähipalveluja sekä mm. kirjasto ja Kehäradan rautatieasema, on matkaa n. 1,5 kilometriä. Hämeenlinnanväylä (VT3) ja Kehä III johdattavat nopeasti joka puolelle pääkaupunkiseutua.
Kohteeseen on jatkuva haku.
Asumisoikeusasunnossa asut kohtuuhintaisessa asunnossa ja maksat kuukausittaista käyttövastiketta. Asumisoikeusasukkaana sinulla on pysyvä asumisturva ja voit myös remontoida kotiasi.
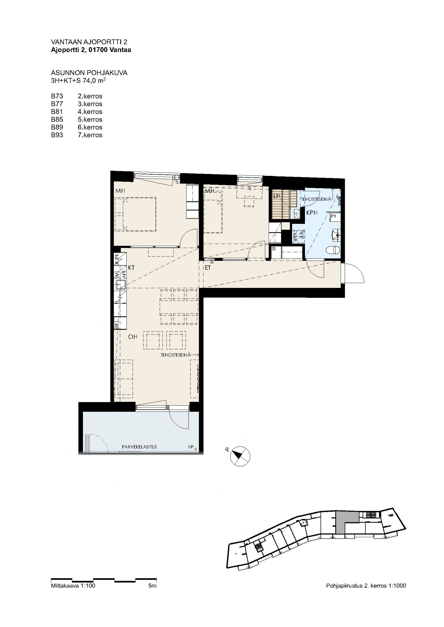
Kolmannen kerroksen läpitalon huoneisto.