Keimolankaarre 8 C 82
Kohteen kuvaus
Tämä viidennen kerroksen kolmio tarjoaa selkeän ja miellyttävän pohjaratkaisun, jossa tilat asettuvat käytännöllisesti arjen tarpeisiin. Olohuone jatkuu lasitetulle parvekkeelle, joka tuo asuntoon lisätilaa ja mahdollisuuden nauttia ulkotilan tunnelmasta säältä suojassa.
Keittiö sijoittuu omaksi rauhalliseksi työskentelyalueekseen ja tarjoaa hyvin kaappitilaa. Kaksi makuuhuonetta löytyvät erillisinä ja helposti sisustettavina tiloina. Laatoitettu kylpyhuone ja oma sauna muodostavat selkeän ja siistin kokonaisuuden peseytymistä ja rentoutumista varten.
Kokonaisuus sopii sinulle, joka arvostat vaivatonta asumista, omaa saunaa ja lasitetun parvekkeen tuomaa lisätilaa mukavasti korkealla kerroksessa.
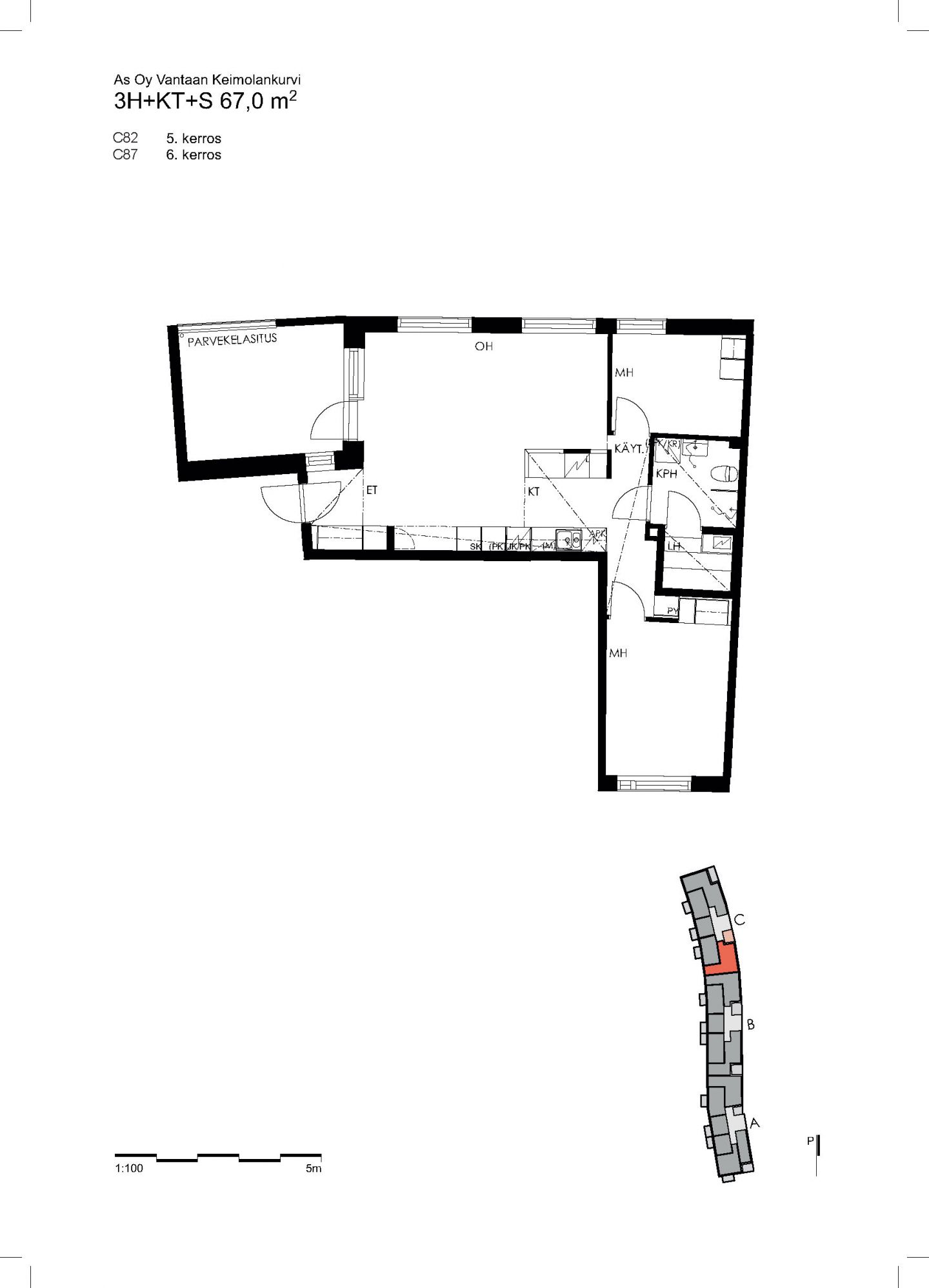
Asunnon kuvaus
Tämä viidennen kerroksen kolmio tarjoaa selkeän ja miellyttävän pohjaratkaisun, jossa tilat asettuvat käytännöllisesti arjen tarpeisiin. Olohuone jatkuu lasitetulle parvekkeelle, joka tuo asuntoon lisätilaa ja mahdollisuuden nauttia ulkotilan tunnelmasta säältä suojassa.
Keittiö sijoittuu omaksi rauhalliseksi työskentelyalueekseen ja tarjoaa hyvin kaappitilaa. Kaksi makuuhuonetta löytyvät erillisinä ja helposti sisustettavina tiloina. Laatoitettu kylpyhuone ja oma sauna muodostavat selkeän ja siistin kokonaisuuden peseytymistä ja rentoutumista varten.
Kokonaisuus sopii sinulle, joka arvostat vaivatonta asumista, omaa saunaa ja lasitetun parvekkeen tuomaa lisätilaa mukavasti korkealla kerroksessa.
Kohteen kuvaus
Vantaan Keimolankaarteen asuinalueella pääset nauttimaan vaivattomasta kerrostaloelämästä kauniin luonnon ympäröimänä tinkimättä kuitenkaan hyvistä liikenneyhteyksistä.
Vuonna 2018 valmistuneessa seitsemänkerroksisessa kerrostaloyhtiössä on yhteensä 96 valoisaa ja hyvin suunniteltua asuntoa.
Pohjaratkaisuja löytyy tehokkaista yksiöistä aina tyylikkäisiin neljän huoneen perheasuntoihin. Tasokkaasti varustelluista asunnoissa on laminaattilattia ja kaakeloitu kylpyhuone sekä moderni keittiö. Asumisoikeuskotien materiaaleissa ja väreissä on otettu huomioon nykyajan trendit. Tunnelmaa ja valoisuutta luovat myös asuntojen lasitetut parvekkeet.
Asukkailla on yhteiskäytössään kerhohuone, kuivaushuone ja ulkovälinevarasto.
Vantaan Keimolanmäki on Vantaan uusimpia asuinalueita Petikon virkistysalueen reunalla. Luonnon läheisyyden ja historian havinan voi aistia aivan asuinalueen vierestä avautuvalla n. 7 000 vuotta vanhalla Isosuolla. Lähellä on lisäksi Keimolan golfkenttä sekä kauniit lenkkeilypolut, jossa talvisin pääsee myös hiihtämään. Lapsiystävällisellä alueella on koulun ja päiväkodin lisäksi leikkipuistoja.
Kivistössä on uusi kauppakeskus ja mm. terveysasema. Kauppakeskus Jumbo on myös vain lyhyen ajomatkan päässä.
Kehäradan Kivistön aseman ympäristö on kehittyvä alue. Juna-asemalle on alle 15 minuutin kävelymatka ja junalla pääsee mm. Helsingin päärautatieasemalle 25 minuutissa ja lentokentälle vain 6 minuutissa. Kohteen vierestä kulkee myös lähiliikenteen busseja. Autolla pääsee liittymään nopeasti Hämeenlinnanväylälle, jonka kautta on nopeaa edetä moneen suuntaan.
Asumisoikeusasunnossa asut kohtuuhintaisessa asunnossa ja maksat kuukausittaista käyttövastiketta. Asumisoikeusasukkaana sinulla on pysyvä asumisturva ja pääset myös remontoimaan kotiasi.
Lemmikit ovat tervetulleita Avain Asuntoihin.
Asunnon perustiedot
| Osoite | Keimolankaarre 8 C 82, 01700 Keimola - Vantaa |
|---|---|
| Huoneistotyyppi | 3H+KT+S |
| Asuintilojen pinta-ala | 67,0 m² |
| Kerros | 5/7 |
| Huoneistosauna | Kyllä |
| Irtainvarasto | Kyllä |
Hintatiedot
| Asumisoikeusmaksu | 38 342,61 € |
|---|---|
| Alkuperäinen ASO-maksu | 31 008,30 € |
| Indeksitarkistus | 7 224,09 € |
| Muutostyöt | 110,22 € |
| Vastike | 824,72 €/kk |
| Vesimaksutyyppi | Vesiennakko |
| Vesimaksu | 26,00 €/hlö/kk |
| Autopaikan hinta alkaen | 22,00 €/kk |
| Vakuus | 250,00 € |
| Tietoliikenneyhteydet | Taloyhtiölaajakaista Elisa 50/50 Mb/s sis. vastikkeeseen/vuokraan. |
- 040 640 4800
- asiakaspalvelu@avainyhtiot.fi
- Avain Asunnot, Lautatarhankatu 8 B, 00580 Helsinki
Kohteen perustiedot
| Kohteen nimi | Vantaan Keimolankaarre 8 |
|---|---|
| Osoite | Keimolankaarre 8, 01700 Keimola - VANTAA |
| Asumismuoto | Asumisoikeus |
| Rakennusvuosi | 2018 |
| Rakennuksen tyyppi | Kerrostalo |
| Hissi | Kyllä |
| Asuntoja | 96 |
| Kerroksia | 7 |
| Energialuokka | C (2012) |
| Lämmitysmuoto | Kaukolämpö |
| Tontin omistus | Oma |
| Antennijärjestelmä | Kaapeli-tv |
| Autopaikkoja yhteensä | 46 |
| Autohallipaikkoja kylmiä | 12 |
| Autohallipaikkoja lämmin | 34 |
| Autokatospaikkoja kylmiä | 12 |
Kohteen yhteistilat
| Kerhohuone |
|---|
| Kuivaushuone |
| Ulkoiluvälinevarasto |
| Väestönsuoja |
- 040 640 4800
- asiakaspalvelu@avainyhtiot.fi
- Avain Asunnot, Lautatarhankatu 8 B, 00580 Helsinki