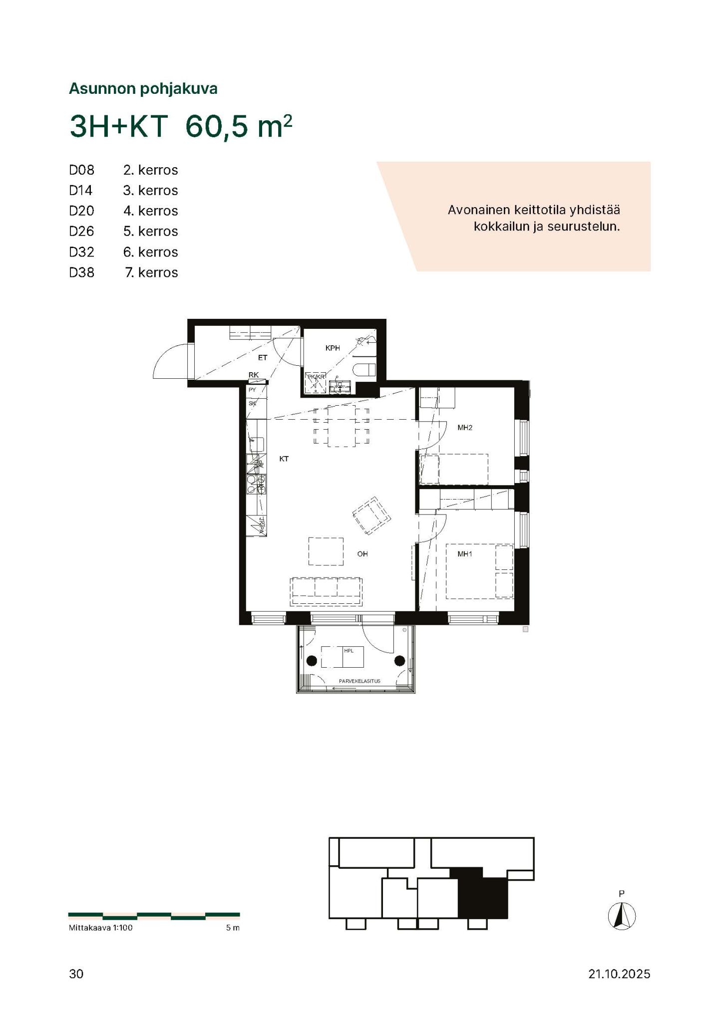
Viilivati 7 D 08

ASO Arvioitu valmistuminen 30.10.2026 Kerrostalo