Espoon Keraan rakentuu uusi viihtyisä Avain-asumisoikeuskohde erinomaisella sijainnilla ja liikenneyhteyksillä. Keran asemalta pääset junalla Leppävaaraan vain viidessä minuutissa ja Helsingin keskustaan tai Espoon keskukseen vartissa. Autolla hurautat sujuvasti niin Turun moottoritielle kuin Kehä II:lle. Liikkuminen on siis mutkatonta niin arjessa kuin vapaa-ajallakin. Läheltä löytyvät Kilon ja Nihtisillan monipuoliset palvelut, kouluja, päiväkoteja, ruokakauppoja, ravintoloita, uimahalli sekä liikuntamahdollisuuksia. Kaikki, mitä tarvitset sujuvaan arkeen, löytyy lyhyen matkan päästä. Keran suunnittelussa korostuvat ekologisuus, vähähiilinen rakentaminen ja uusiutuvan energian ratkaisut. Alueesta rakentuu viihtyisä paikka asua ja elää.
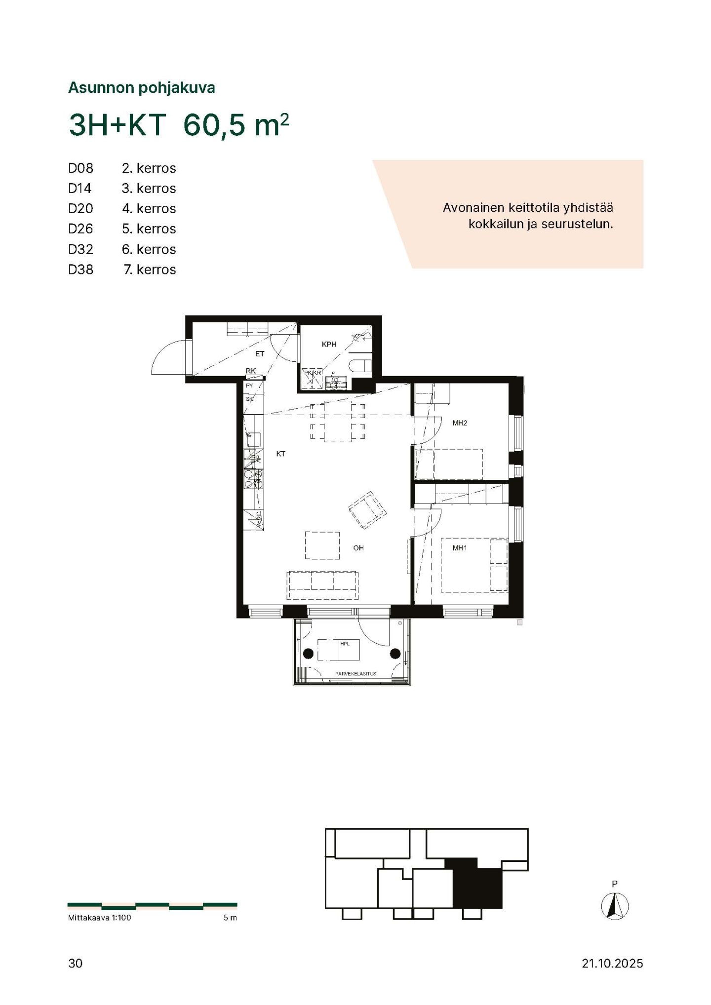
Tämä 39 asunnon kerrostalo tarjoaa helppoa ja huoletonta asumista jokaiselle kodin etsijälle. A-energialuokan kerrostaloon valmistuu 39 valoisaa kotia. Kotivaihtoehtoja löytyy avarista 35 m² yksiöistä aina 87,5 m² perheasuntoihin, joten tarjolla on ratkaisuja eri elämäntilanteisiin. Asunnot on suunniteltu käytännöllisyys ja asumismukavuus edellä. Toimivat pohjaratkaisut ja hyvin varustellut keittotilat tekevät arjesta sujuvaa. Asuinhuoneiden laadukkaat kodinkoneet ja laminaattilattiat sekä laatoitettu kylpyhuone viimeistelevät viihtyisän kodin. Ensimmäisen kerroksen kolmiolla on lasitettu terassi ja asuntopiha. Muissa asunnoissa lasitettu parveke tuo lisää tilaa asumiseen.
Ullakkokerroksessa sijaitsevat kerhotila ja saunaosasto vilvoitteluparvekkeineen tarjoavat mahdollisuuden rentoutumiseen ja yhdessäoloon. Lisäksi käytössä ovat irtaimistovarastot, lastenvaunu- ja ulkoiluvälinevarastot sekä pesula ja kuivaushuone.
Yhtiöllä on autopaikkoja 24 kappaletta, joista 23 sijaitsee viereisessä pysäköintilaitoksessa. Yksi Le-autopaikka sijaitsee korttelipihalla. Asuinrakennuksen valmistuessa on käytössä väliaikaset pysäköintipaikat. Pysäköintilaitos tulee valmistumaan myöhemmin.
Kohde ja asunnot ovat savuttomia koko kiinteistön alueella.
Lemmikit ovat tervetulleita Avain Asuntoihin.
Kohteen ensimmäinen hakuaika päättyy 14.12.2025, jonka jälkeen kohteeseen on jatkuva haku.
Ensimmäinen maksuerä 40 % erääntyy maksettavaksi kaksi viikkoa sopimuksen allekirjoittamisen jälkeen ja loppuosuus 60 % maksetaan kolme kuukautta ennen kohteen arvioitua valmistumista.
Huoneiston varaus- ja vakuusmaksu on 250 €.
Rakentaminen on aloitettu ja arvio valmistumisesta on 30.10.2026.