Liiketila 2 | Laskumäki 1 Pasila
Liiketila Pasilaan paraatipaikalle
Tervetuloa Pasilan paraatipaikalle! Laskumäki 1:ssä on nyt tarjolla uutta liike- ja toimistotilaa. Tämä 12-kerroksinen rakennus sijaitsee Keski-Pasilan kehittyvällä alueella, aivan vilkkaan kauppakeskus Triplan läheisyydessä. Rakennus muodostaa läntisen kulmatornin viihtyisästä korttelista ja on osa näyttävien kerrostalojen rivistöä, joka reunustaa Pasilan juna-asemaa.
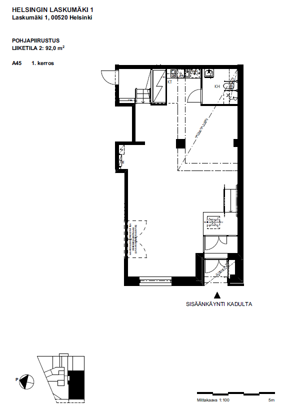
Liiketila 2 | 92 m2
Tämä ensimmäisessä kerroksessa sijaitseva tila soveltuu monipuolisesti liiketilaksi tai toimistosi tarpeisiin. Pasilan rautatieasema ja Kauppakeskus Tripla ovat vain lyhyen kävelymatkan päässä, mikä tekee tästä sijainnista erityisen houkuttelevan.
Tule tutustumaan ja löydä uusi tilasi Pasilan parhaalla paikalla!

Tilava liiketila paraatipaikalla
- Osoite: Laskumäki 1, 00520 Helsinki
- Pinta-ala: 92,0 m2
- Kerros 1 (katutaso)
- Sisäänkäynti kadulta
- Valmistunut: Kevät 2025