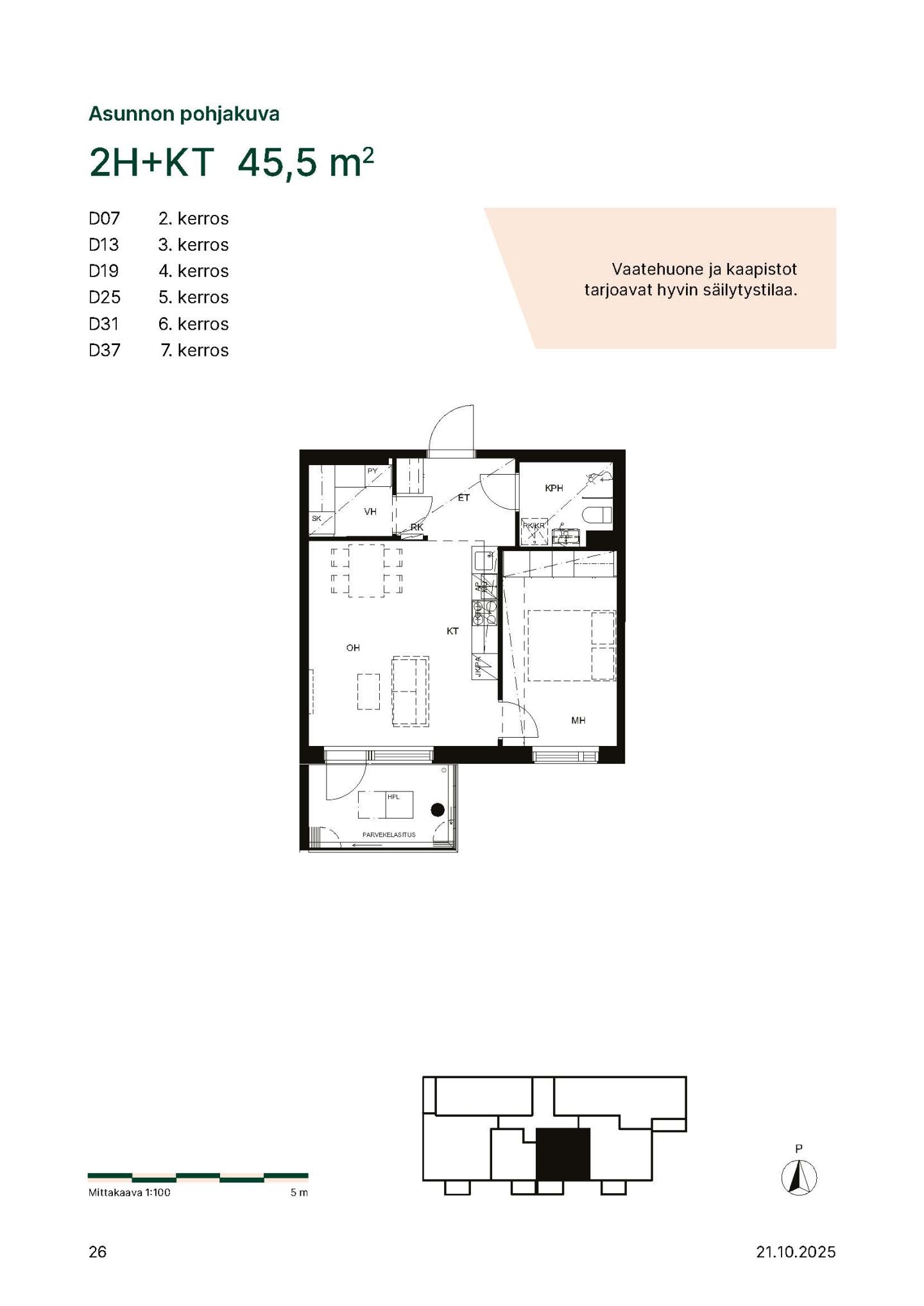
Viilivati 7 D 25

ASO Arvioitu valmistuminen 30.10.2026 Vapautuu 30.10.2026 Kerrostalo