Suopurontie 3 B 03
Kohteen kuvaus
Siisti rivitalo-tyyppinen huoneisto Niipperissä. Asunnolla on pieni etupiha sisäänkäynnin yhteydessä ja 2 terassiparveketta. Tämän kohteen kaikki asunnot on peruskorjattu v 2023.
Asunnon kuvaus
Siisti rivitalo-tyyppinen huoneisto Niipperissä. Asunnolla on pieni etupiha sisäänkäynnin yhteydessä ja 2 terassiparveketta. Tämän kohteen kaikki asunnot on peruskorjattu v 2023.
Kohteen kuvaus
Rivi-/paritaloyhtiö rauhallisella sijainnilla lapsiperheiden suosimalla alueella Niipperissä.
Yhtiössä on toimivia asuntoja aina yhden tason kolmioista suurempiin kahden tason perheasuntoihin. Suuremmissa asunnoissa löytyy kaksi suihkua – sekä ylä-, että alakerrasta. Säilytystilaakin on ruhtinaallisesti; tilava kylmä- ja lämmin varasto kuuluu jokaisen asunnon varustukseen. Kaikissa asunnoissa on myös oma sauna.
Asukkaiden yhteisessä käytössä on talouskellari sekä ulkoiluvälinevarasto.
Koulut ja päiväkodit ovat kävelyetäisyydellä ja lähin päiväkoti onkin tien toisella puolella. Ulkoilumaastot ovat myös mitä mahtavimmat ja lähes takapihalta alkaa luonnonsuojelualue. Lähellä on myös mm. K Espoo Ringside Golf ja muita harrastusmahdollisuuksia.
Hyvät liikenneyhteydet kaikkialle pääkaupunkiseudulle. Lähin bussipysäkki, josta pääset esimerkiksi Leppävaaraan on alle 100 m päässä kotiovesta. Kohteelta on myös lyhyt ajomatka kaikille lähialueen valtateille.
Pääsääntöisesti kaikki asunnot uudistetaan kauttaaltaan ja asunnoista remontoidaan perusparannuksen yhteydessä uutta vastaavia. Kun teet sopimuksen ajoissa, pääset valitsemaan sinulle mieluiset pintamateriaalit annetuista vaihtoehdoista. Katso kuvia toteutetuista asunnoista. Vastike ei nouse perusparannuksesta johtuen.
Perusparannus on valmistunut yhtiössä 2023.
Asumisoikeusasunnossa asut kohtuuhintaisessa asunnossa ja maksat kuukausittaista käyttövastiketta. Asumisoikeusasukkaana pääset remontoimaan myös kotiasi ja sinulla on pysyvä asumisturva. Lemmikit ovat tervetulleita Avain Asuntoihin.
Asunnon perustiedot
| Osoite | Suopurontie 3 B 03, 02920 Niipperi - Espoo |
|---|---|
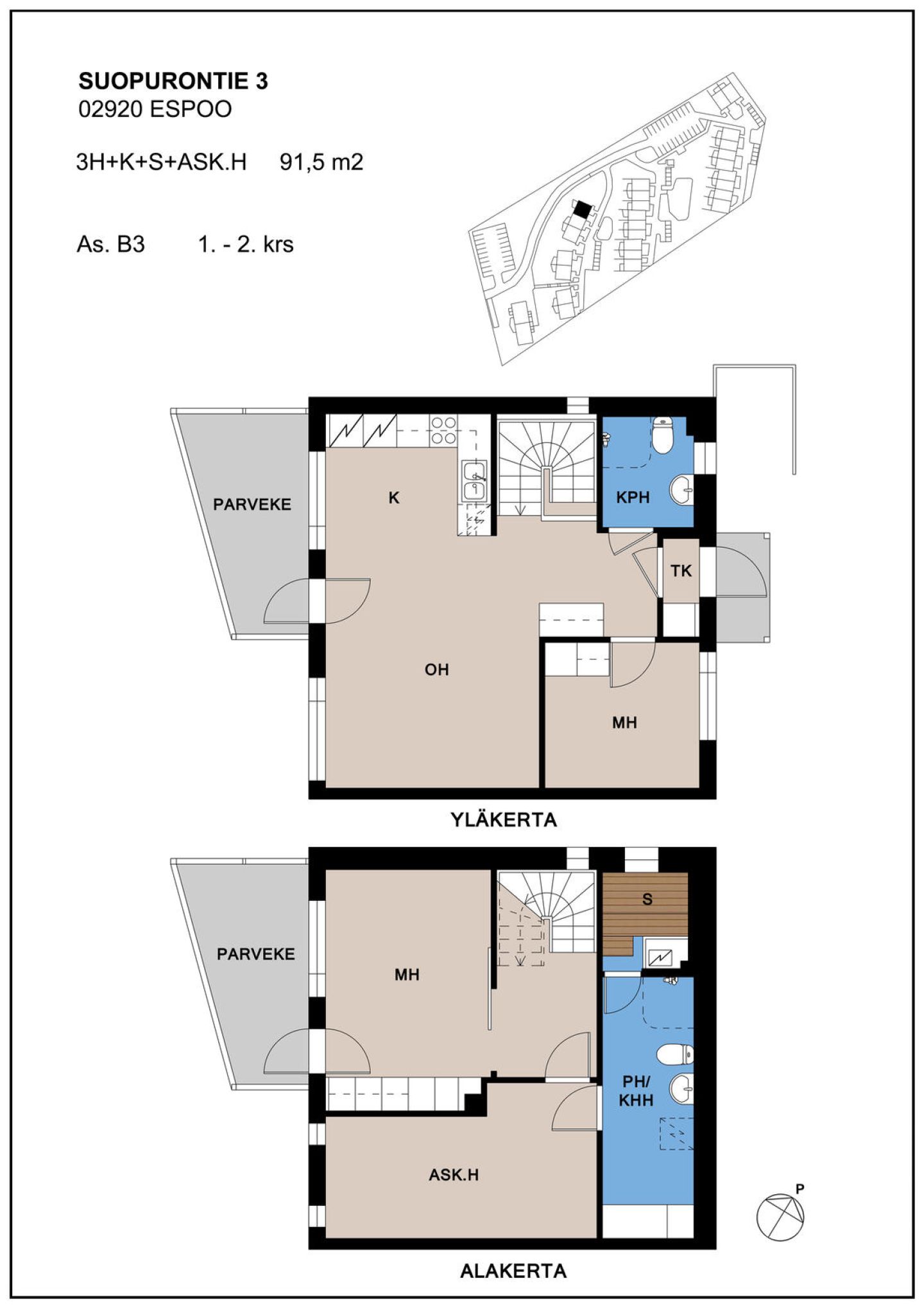
| Huoneistotyyppi | 3H+KK+ASK+S |
| Asuintilojen pinta-ala | 91,5 m² |
| Kerros | 2/2 |
| Huoneistosauna | Kyllä |
| Parveke | Kyllä |
| Irtainvarasto | Kyllä |
Hintatiedot
| Asumisoikeusmaksu | 38 189,17 € |
|---|---|
| Alkuperäinen ASO-maksu | 22 327,79 € |
| Indeksitarkistus | 15 861,38 € |
| Muutostyöt | 0,00 € |
| Vastike | 1 227,52 €/kk |
| Vesimaksutyyppi | Vesiennakko |
| Vesimaksu | 20,00 €/hlö/kk |
| Autopaikan hinta alkaen | 22,00 €/kk |
| Vakuus | 250,00 € |
| Tietoliikenneyhteydet | Taloyhtiölaajakaista Elisa 50/50 Mb/s sis. vastikkeeseen/vuokraan. |
- 040 640 4800
- asiakaspalvelu@avainyhtiot.fi
- Avain Asunnot, Lautatarhankatu 8 B, 00580 Helsinki
Kohteen perustiedot
| Kohteen nimi | Espoon Suopurontie 3 |
|---|---|
| Osoite | Suopurontie 3, 02920 Niipperi - ESPOO |
| Asumismuoto | Asumisoikeus |
| Rakennusvuosi | 2001 |
| Rakennuksen tyyppi | Rivitalo |
| Asuntoja | 28 |
| Kerroksia | 2 |
| Energialuokka | E (2007) |
| Lämmitysmuoto | Kaukolämpö |
| Tontin omistus | Oma |
| Antennijärjestelmä | Kaapeli-tv |
| Autopaikkoja yhteensä | 42 |
Kohteen yhteistilat
| Talouskellari |
|---|
| Ulkoiluvälinevarasto |
| Väestönsuoja |
- 040 640 4800
- asiakaspalvelu@avainyhtiot.fi
- Avain Asunnot, Lautatarhankatu 8 B, 00580 Helsinki