Jakomäenpolku 8 B 37
Kohteen kuvaus
Valoisa koti Jakomäessä avautuu miellyttävästi valoon useasta ilmansuunnasta, tuoden tilaan avaruutta ja viihtyisyyttä läpi päivän. Tässä asunnossa yhdistyvät toimiva pohjaratkaisu ja rauhallinen sijainti – täydellinen valinta sinulle, joka arvostat sujuvaa arkea ja kauniita näkymiä.
Asunnon kuvaus
Valoisa koti Jakomäessä avautuu miellyttävästi valoon useasta ilmansuunnasta, tuoden tilaan avaruutta ja viihtyisyyttä läpi päivän. Tässä asunnossa yhdistyvät toimiva pohjaratkaisu ja rauhallinen sijainti – täydellinen valinta sinulle, joka arvostat sujuvaa arkea ja kauniita näkymiä.
Kohteen kuvaus
Helsingin Jakomäkeen on valmistunut Avain-vuokrakoteja syksyllä 2023. Jakomäessä kaikki palvelut ovat lähellä. Ostoskeskus, liikuntapuisto, uimahalli kuntosaleineen ja peruskoulu sijaitsevat kaikki 300 metrin säteellä kohteesta. Alueella on myös upeat ulkoilumahdollisuudet. Liikenneyhteydet ovat loistavat, Jakomäki sijaitsee Lahden moottoritien, Porvoonväylän ja Kehä 3:n solmukohdassa, joten omalla autolla pääsee nopeasti kulkemaan paikasta toiseen isoja teitä pitkin. Alueelta on myös hyvät bussiyhteydet Vantaalle ja muualle Helsinkiin.
Kohteeseen kuuluu kolme taloa, joissa on yhteensä 72 laadukasta vuokrakotia. Huoneistoja löytyy toimivista yksiöistä aina kolmen huoneen tilaviin perheasuntoihin. Asunnot ovat selkeäpohjaisia ja ne on helppo sisustaa oman maun mukaisesti. Nämä valoisat asunnot ovat myös tasokkaasti varusteltuja; jokaisessa asunnossa on mm. induktioliesi ja kalusteuuni sekä astianpesukone. Lattiat ovat laminaattia ja parvekkeet lasitettuja. Kylpyhuoneissa on mukavuuslattialämmitys.
Taloyhtiön yleisissä tiloissa on sauna, pesutupa, kuivaushuone, huoneistokohtaiset irtainvarastot ja ulkoiluvälinevarasto. Kohteen sisäpihalla on leikkialue. Yhtiöllä on autopaikkoja 40 kpl. Kaksi autopaikkaa on osoitettu nopeamman latauksen paikoiksi ja muilla autopaikoilla on sähköauton latausmahdollisuus ja auton lämmitysmahdollisuus.
Toistaiseksi voimassa oleva sopimus, kuitenkin vähintään 12 kk. Kohde ja asunnot ovat savuttomia koko kiinteistön alueella. Asuntoihin ovat lemmikit tervetulleita.
Tarkistamme hakijoiden luottotiedot Suomen Asiakastieto Oy:n tietokannasta.
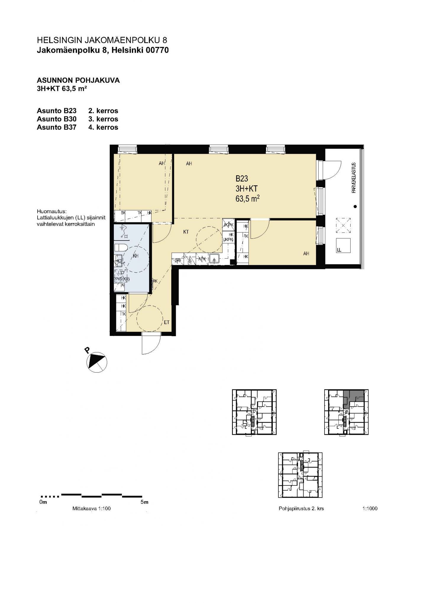
Asunnon perustiedot
| Osoite | Jakomäenpolku 8 B 37, 00770 Jakomäki - Helsinki |
|---|---|
| Huoneistotyyppi | 3H+KT |
| Asuintilojen pinta-ala | 63,5 m² |
| Kerros | 4/4 |
| Parveke | Kyllä |
| Parvekelasitus | Kyllä |
| Irtainvarasto | Kyllä |
Hintatiedot
| Vuokra | 1 100,00 €/kk |
|---|---|
| Vesimaksutyyppi | Vesiennakko |
| Vesimaksu | 25,50 €/hlö/kk |
| Autopaikan hinta alkaen | 25,00 €/kk |
| Vakuus | 250,00 € |
| Tietoliikenneyhteydet | Taloyhtiölaajakaista Elisa 50/50 Mb/s sis. vastikkeeseen/vuokraan. |
- 040 640 4800
- asiakaspalvelu@avainyhtiot.fi
- Avain Asunnot, Lautatarhankatu 8 B, 00580 Helsinki
Kohteen perustiedot
| Kohteen nimi | Helsingin Jakomäenpolku 8 |
|---|---|
| Osoite | Jakomäenpolku 8, 00770 Jakomäki - Helsinki |
| Asumismuoto | Vuokrakohde |
| Rakennusvuosi | 2023 |
| Rakennuksen tyyppi | Kerrostalo |
| Savuton kohde | Kyllä |
| Hissi | Kyllä |
| Asuntoja | 72 |
| Kerroksia | 5 |
| Energialuokka | B (2018) |
| Lämmitysmuoto | Kaukolämpö |
| Tontin omistus | Vuokra |
| Antennijärjestelmä | Kaapeli-tv |
| Autopaikkoja yhteensä | 40 |
Kohteen yhteistilat
| Talosauna |
|---|
| Kerhohuone |
| Pesutupa |
| Kuivaushuone |
| Ulkoiluvälinevarasto |
| Huoneistokohtaiset varastot |
| Väestönsuoja |
- 040 640 4800
- asiakaspalvelu@avainyhtiot.fi
- Avain Asunnot, Lautatarhankatu 8 B, 00580 Helsinki