TURKOOSIKULMAN KODIT OVAT RAKENTEILLA ja MYYNNISSÄ!
Tervetuloa esittelyyn ke 29.4. klo 17-18 sisustettuun esittelyasuntoon B20 (4H+KT+S, 1.krs, 77 m2)
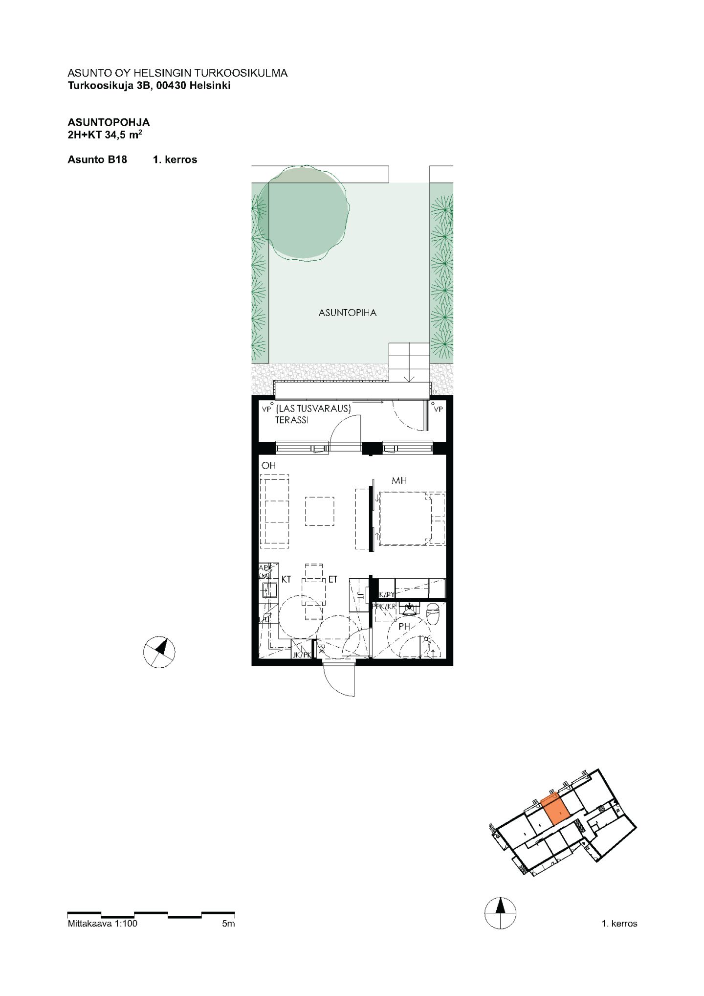
Asunto Oy Helsingin Turkoosikulmaan tulee kaikkiaan 34 viihtyisää ja valoisaa A-energialuokan kotia kokovälillä 27- 77 m2 alkovillisista yksiöistä kolmen makuuhuoneen asuntoihin. Kaikissa kodeissa on joko tilava terassi tai parveke, useimmissa 1. krs:n kodeissa on jopa ikioma asuntopiha. Turkoosikulman kodit on suunniteltu tehokkaiksi huomioiden erityisesti säilytystilantarve. Tavallista korkeammat ikkunat tuovat koteihin valoa ja ilmavuutta. Lattialämmitys taas on miellyttävä ja taloudellinen lämmitysratkaisu helpottaen myös sisustamista. Suuremmissa kolmioissa ja kaikissa neliöissä on oma sauna. Taloyhtiön kattavat yhteiskäyttötilat kuten talosauna, pesula ja kuivaushuone helpottavat kaikkien asukkaiden arkea.
Erikseen myytävät autopaikat (á 15 000 €) sijoittuvat pihakannen alle halliin, jonne on pääsy mukavasti hissillä. Kaikilla autopaikoilla on sähköauton hitaan latauksen mahdollisuus.
Rauhallinen Kuninkaantammi sijaitsee Keskuspuiston syleilyssä houkuttaen eritoten ulkoiluun ja pyöräilyyn. Aivan Kuninkaantammen läheisyydessä ovat Keskuspuiston ja Vantaanjoen virkistysreitit, hiihtoladut sekä Pitkäkosken maja. Keskuspuiston rikkaassa ja vaihtelevassa luonnossa riittää ulkoilureittejä ja luonnonsuojelualueita. Kaiken kruunaa Palettilampi uimarantoineen ja kävelyreitteineen.
Kehittyvässä Kuninkaantammessa on jo alakoulu ja sen yhteydessä toimiva päiväkoti. Leikkipaikka Vennynpuisto on lapsiperheiden vetonaula. Editan entisissä tiloissa ovat Wolt-market ja Morning Deli -lounasravintola. Kaivoksela kattavampine palveluineen on kävelyetäisyydellä. Viereinen Hämeenlinnanväylä mahdollistaa nopeat yhteydet ympäri pääkaupunkiseutua.
Turkoosikulma rakennetaan valinnaiselle vuokratontille. Voit maksaa tontin lunastusosuuden taloyhtiön valmistuessa tai kuukausittain tontinvuokravastiketta. Lisätietoa tonttiin liittyen saat myyntineuvottelijaltamme.
Asunnot valmistuvat arviolta elokuussa 2026. RS-kohde, jossa asunnon myyntihinta maksetaan osina rakentamisen aikana valmiusasteen etenemisen mukaan.
Voit sitoumuksetta ensin varata sinua kiinnostavan kodin, jolloin myyntineuvottelijamme ottaa sinuun yhteyttä ja lähettää lisätietoa kohteesta ja asunnosta.
Myynti ja lisätiedot: Jaana Angeria
jaana.angeria@avainyhtiot.fi / 040 738 5858