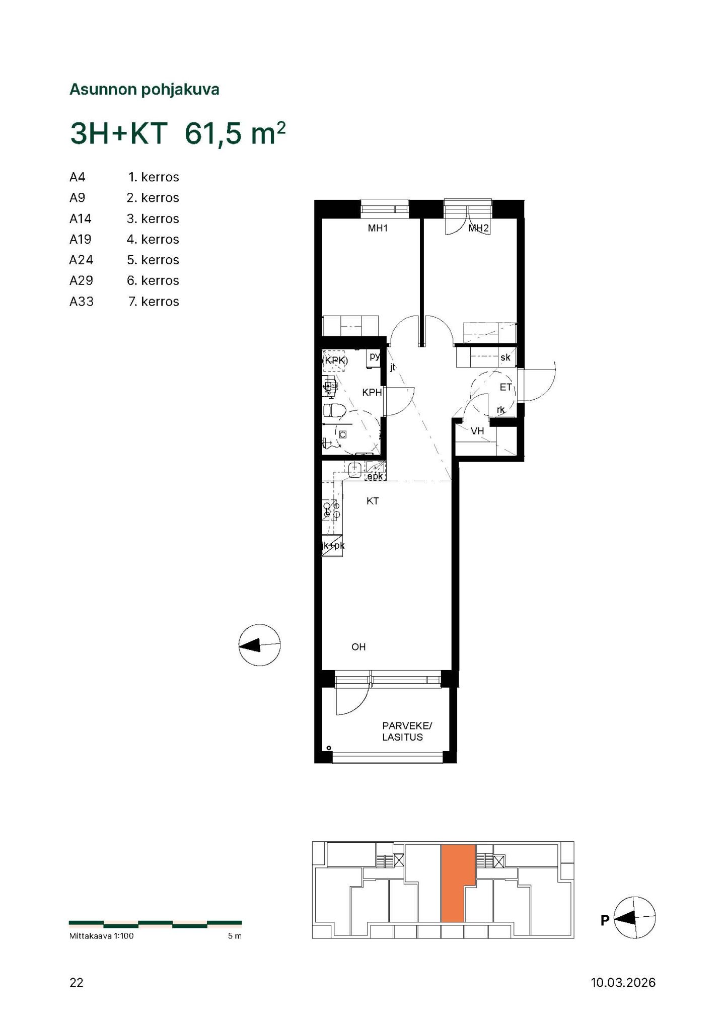
Pallaksentie 7 A 24

Vuokra Arvioitu valmistuminen 29.5.2026 Vapautuu 29.5.2026 Kerrostalo Tulorajat