Helsingin Siltamäessä, Vantaanjoen kupeessa rauhallisella ja vehreällä alueella sijaitseva kerrostaloyhtiö.
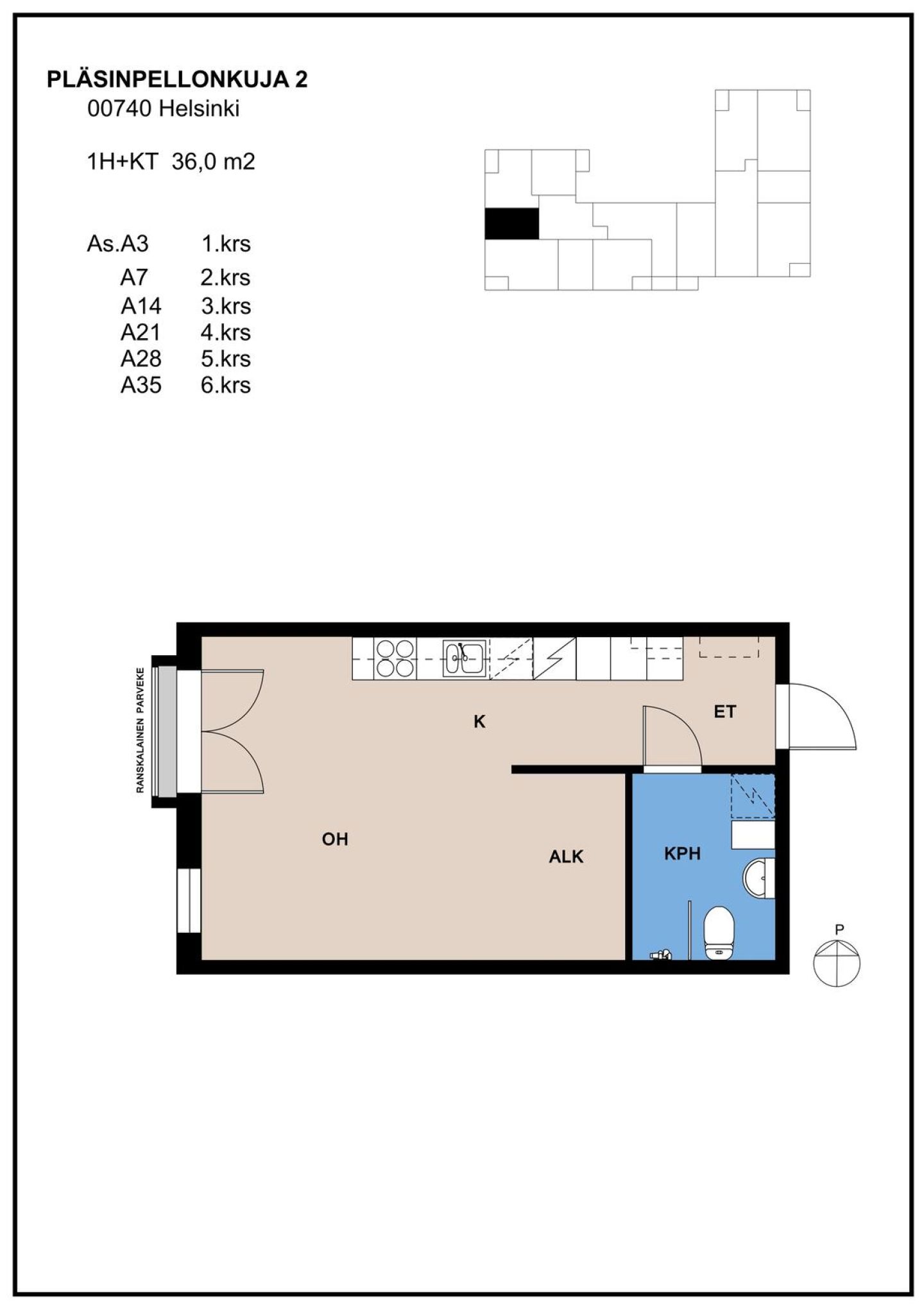
Vuonna 2018 valmistuneessa kerrostaloyhtiössä on yhteensä 61 valoisaa ja hyvin suunniteltua asumisoikeusasuntoa. Monipuolinen asuntojakauma 35m2 yksiöistä aina 88m2 neliöihin mahdollistaa asumisen niin sinkuille, pariskunnille kuin lapsiperheillekin. Asunnoista löytyvät tyylikkäät pintaratkaisut, laminaattilattiat sekä laatoitetut kylpytilat, sekä moderni hyvin varusteltu keittiö.
Asumismukavuutta lisäävät viherkattoinen piharakennus talosaunoineen sekä piha-alueen viihtyisä yhteistila, josta löytyy tekemistä kaiken ikäisille. Tämän lisäksi asukkailla on käytössään yhteinen ulkoiluvälinevarasto sekä pesutupa kuivaushuoneineen.
Siltamäki on rauhallinen, erityisesti lapsiperheiden suosima alue, jossa pääsee nauttimaan kauniista ulkoilumahdollisuuksista. Erilaiset puistot sekä Vantaanjoen tarjoamat kauniit lenkkipolut löytyvät lähettyviltä. Urheilun ystäville alueelta löytyy myös jalkapallokenttä ja frisbeegolfrata. Kohteen läheltä löytyvät myös koulu sekä päiväkodit.
Lähimpään ruokakauppaan on vain 5 minuutin kävelymatka ja Tammiston monipuoliset palvelut sekä kauppakeskus Jumbo ovat vain lyhyen ajomatkan päässä. Kohde on myös hyvien julkisten kulkuyhteyksien päässä. Lähimmät bussipysäkit ovat vain muutaman minuutin kävelymatkan päässä, josta kulkee muun muassa runkolinja 560.
Asumisoikeusasunnossa asut kohtuuhintaisessa asunnossa ja maksat kuukausittaista käyttövastiketta. Asumisoikeusasukkaana pääset remontoimaan myös kotiasi ja sinulla on pysyvä asumisturva. Lemmikit ovat tervetulleita Avain Asuntoihin.