Terveystie 27 A 01
Kohteen kuvaus
Salpakankaan viihtyisällä asuinalueella, hyvien palveluiden tuntumassa sijaitseva rivi- / kerrostaloyhtiö. Talonyhtiössä on asuntoja 40 m2 kerrostalokaksiosta kohteen rivitalo-osuudessa oleviin isoihin 93m2 neliöihin.
Kohteen kaikki 36 asuntoa on uudistettu vuonna 2017 valmistuneen perusparannusremontin aikana. Hyvin varustellussa keittiössä on mm. keraaminen liesi ja astianpesukone, lattiat ovat laminaattia ja kylpyhuoneet on uudistettu ja laatoitettu kokonaan. Talon asukkailla on käytössään kuivaushuone, talovarasto ja ulkoiluvälinevarasto.
Hollolan uimahalli on 500 metrin päässä ja matkaa Hollolan Prisman kattavien palveluiden ääreen on vain 300 metriä. Bussipysäkki löytyy 100 metrin päästä.
Asumisoikeusasunnossa asut kohtuuhintaisessa asunnossa ja maksat kuukausittaista käyttövastiketta. Asumisoikeusasukkaana pääset halutessasi remontoimaan kodistasi oman näköisen. Sinulla on myös pysyvä asumisturva. Lemmikit ovat tervetulleita Avain Asuntoihin!
Asunnon perustiedot
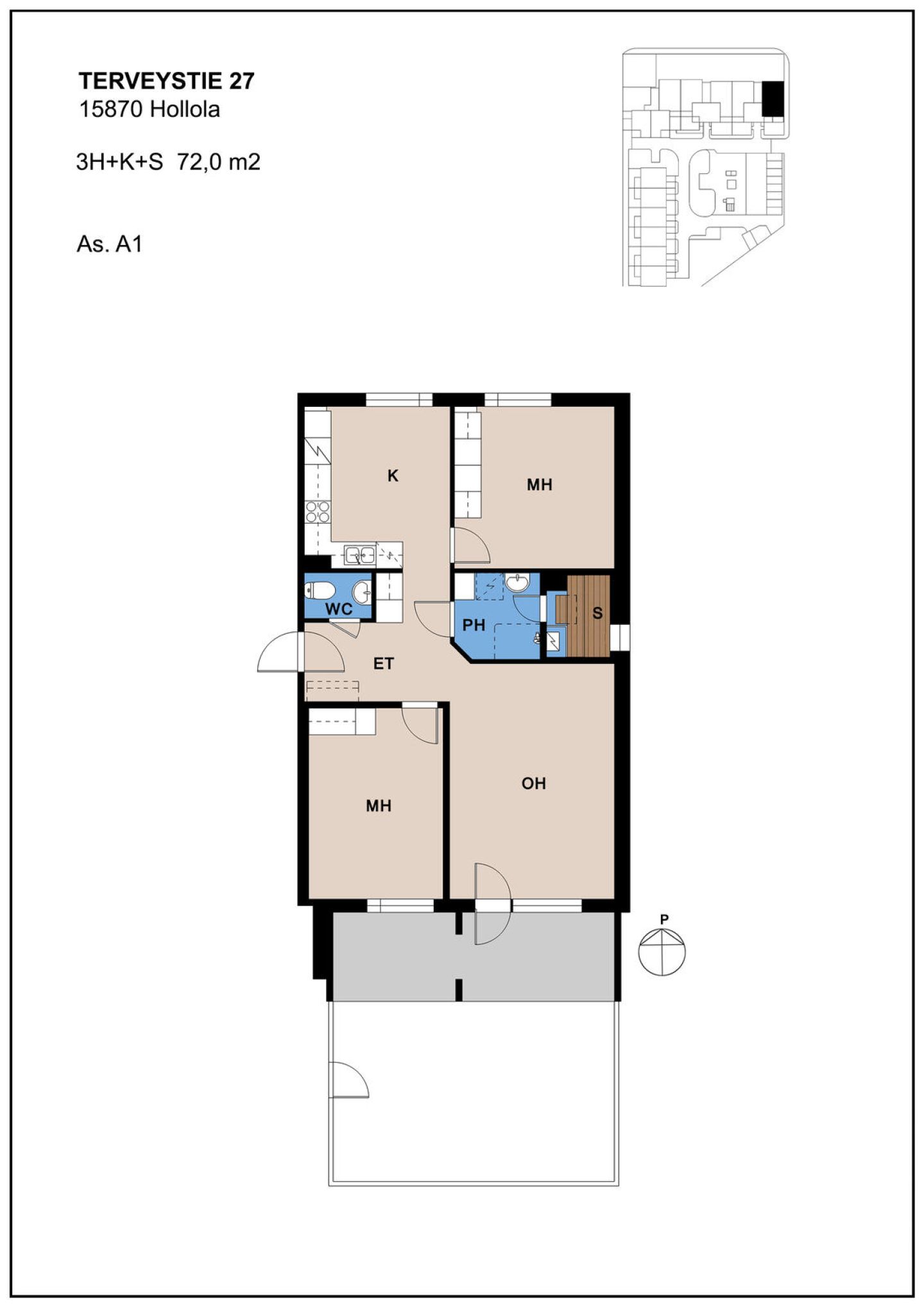
| Osoite | Terveystie 27 A 01, 15870 Kuntakeskus - Hollola |
|---|---|
| Huoneistotyyppi | 3H+K+S |
| Asuintilojen pinta-ala | 72,0 m² |
| Kerros | 1/4 |
| Huoneistosauna | Kyllä |
| Irtainvarasto | Kyllä |
Hintatiedot
| Asumisoikeusmaksu | 13 577,73 € |
|---|---|
| Alkuperäinen ASO-maksu | 7 141,76 € |
| Indeksitarkistus | 6 435,97 € |
| Muutostyöt | 0,00 € |
| Vastike | 877,68 €/kk |
| Vesimaksutyyppi | Vesimaksu |
| Vesimaksu | 18,00 €/hlö/kk |
| Autopaikan hinta alkaen | 15,00 €/kk |
| Vakuus | 250,00 € |
| Tietoliikenneyhteydet | Taloyhtiölaajakaista DNA/Welho 25/10 Mb/s sis. vastikkeeseen/vuokraan. |
- 040 640 4800
- asiakaspalvelu@avainyhtiot.fi
- Avain Asunnot, Vuorikatu 35 A, 15100 Lahti
Kohteen perustiedot
| Kohteen nimi | Hollolan Terveystie 27 |
|---|---|
| Osoite | Terveystie 27, 15870 Kuntakeskus - HOLLOLA |
| Asumismuoto | Asumisoikeus |
| Rakennusvuosi | 1992 |
| Rakennuksen tyyppi | Kerrostalo |
| Hissi | Kyllä |
| Asuntoja | 36 |
| Kerroksia | 4 |
| Energialuokka | C (2007) |
| Lämmitysmuoto | Kaukolämpö |
| Tontin omistus | Oma |
| Antennijärjestelmä | Kaapeli-tv |
| Autopaikkoja yhteensä | 34 |
Kohteen yhteistilat
| Kuivaushuone |
|---|
| Ulkoiluvälinevarasto |
- 040 640 4800
- asiakaspalvelu@avainyhtiot.fi
- Avain Asunnot, Vuorikatu 35 A, 15100 Lahti