Sahankaari 21 A 08
Kohteen kuvaus
Valoisa toisen kerroksen saunallinen huoneisto, jossa ikkunoita kolmeen ilmansuuntaan. Tässä 2024 pinnoiltaan uusitussa asunnossa on toimiva pohjaratkaisu ja hyvin säilytystilaa. Avarasta olohuoneesta on myös käynti parvekkeelle, jonne on muutostyönä asennettu parvekelasitus.
Asunnon kuvaus
Valoisa toisen kerroksen saunallinen huoneisto, jossa ikkunoita kolmeen ilmansuuntaan. Tässä 2024 pinnoiltaan uusitussa asunnossa on toimiva pohjaratkaisu ja hyvin säilytystilaa. Avarasta olohuoneesta on myös käynti parvekkeelle, jonne on muutostyönä asennettu parvekelasitus.
Kohteen kuvaus
Pöytäalhossa, aivan Järvenpään keskustan tuntumassa sijaitseva viihtyisä kerrostaloyhtiö.
Asuntoja löytyy moneen tarpeeseen, tilavista yksiöistä aina toimiviin neljän huoneen perheasuntoihin. Valoisista ja hyvin varustelluista asunnoista saa sisustettua itselleen mieleisen ja rauhallisen kodin. Omalla terassilla tai parvekkeella on mukava juoda aamukahvit ja paistatella päivää. Piha on siisti, vehreä ja keskeisestä sijainnista huolimatta rauhallinen. Asukkailla on käytössään yhteinen ulkoiluvälinevarasto sekä kuivaushuone.
Kohteen kaikki asunnot on uudistettu kauttaaltaan vuosina 2023–2024. Hyvin varustellussa keittiössä on mm. astianpesukone, lattiat ovat laminaattia ja kylpyhuoneet on uudistettu ja laatoitettu kokonaan.
Järvenpään kehittyvän keskustan kaikki palvelut ovat kävelyetäisyydellä, muun muassa maailman parhaaksi ruokakaupaksi valittu Järvenpään K-Citymarket, Prisma ja elokuvateatteri. Alueelta löytyy myös monia harrastusmahdollisuuksia kuten uima- ja jäähalli sekä kauniita lenkkipolkuja. Alueen kuitenkin kruunaa rantapuisto, jossa voi kesällä nauttia auringosta ja talvella Tuusulan järvelle pääsee hiihtämään ja luistelemaan. Alueelta löytyy koulu sekä päiväkoti.
Järvenpää sijaitsee junaradan varrella ja asemalta pääsee Helsingin päärautatieasemalle puolessa tunnissa. Juna-asemalle kohteesta kävelee vain muutaman minuutin, ja lisäksi paikallisbussit kulkevat kohteen läheltä. Autolla pääsee liittymään nopeasti Lahden moottoritielle, josta on helppo edetä moneen suuntaan.
Asumisoikeusasunnossa asut kohtuuhintaisessa asunnossa ja maksat kuukausittaista käyttövastiketta. Asumisoikeusasukkaana pääset remontoimaan myös kotiasi ja sinulla on pysyvä asumisturva. Lemmikit ovat tervetulleita Avain Asuntoihin.
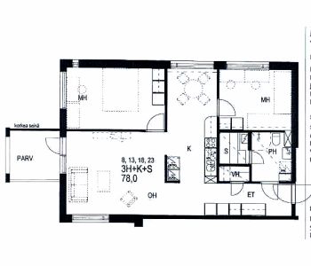
Asunnon perustiedot
| Osoite | Sahankaari 21 A 08, 04430 Pöytäalho - Järvenpää |
|---|---|
| Huoneistotyyppi | 3H+K+S |
| Asuintilojen pinta-ala | 78,0 m² |
| Kerros | 2/5 |
| Huoneistosauna | Kyllä |
| Irtainvarasto | Kyllä |
Hintatiedot
| Asumisoikeusmaksu | 31 424,32 € |
|---|---|
| Alkuperäinen ASO-maksu | 16 958,73 € |
| Indeksitarkistus | 11 932,26 € |
| Muutostyöt | 2 533,33 € |
| Vastike | 1 039,68 €/kk |
| Vesimaksutyyppi | Vesiennakko |
| Vesimaksu | 18,00 €/hlö/kk |
| Autopaikan hinta alkaen | 16,00 €/kk |
| Vakuus | 250,00 € |
| Tietoliikenneyhteydet | Taloyhtiölaajakaista Elisa 50/50 Mb/s sis. vastikkeeseen/vuokraan. |
- 040 640 4800
- asiakaspalvelu@avainyhtiot.fi
- Avain Asunnot, Lautatarhankatu 8 B, 00580 Helsinki
Kohteen perustiedot
| Kohteen nimi | Järvenpään Sahankaari 21 |
|---|---|
| Osoite | Sahankaari 21, 04430 Pöytäalho - JÄRVENPÄÄ |
| Asumismuoto | Asumisoikeus |
| Rakennusvuosi | 2001 |
| Rakennuksen tyyppi | Kerrostalo |
| Hissi | Kyllä |
| Asuntoja | 23 |
| Kerroksia | 5 |
| Energialuokka | E (2018) |
| Lämmitysmuoto | Kaukolämpö |
| Tontin omistus | Oma |
| Antennijärjestelmä | Kaapeli-tv |
| Autopaikkoja yhteensä | 25 |
Kohteen yhteistilat
| Kuivaushuone |
|---|
| Ulkoiluvälinevarasto |
| Väestönsuoja |
- 040 640 4800
- asiakaspalvelu@avainyhtiot.fi
- Avain Asunnot, Lautatarhankatu 8 B, 00580 Helsinki