Järvenpään Terholaan valmistui 28.3.2024 kolmen 6-kerroksisen talon Avain-vuokrakohde. Kohteessa on yhteensä 119 viihtyisää vuokrakotia.
Terhola sijaitsee noin 1,5 km päässä Järvenpään keskustan palveluista. Lähituntumasta löytyvät koulut, päiväkodit, terveyspalvelut, ruokakaupat ja hyvät ulkoilu- sekä harrastusmahdollisuudet. Järvenpään rautatieasemalta junamatka Helsingin keskustaan kestää 36 minuuttia ja Lahdenväylää pitkin on hyvät ajoyhteydet pääkaupunkiseudulle.
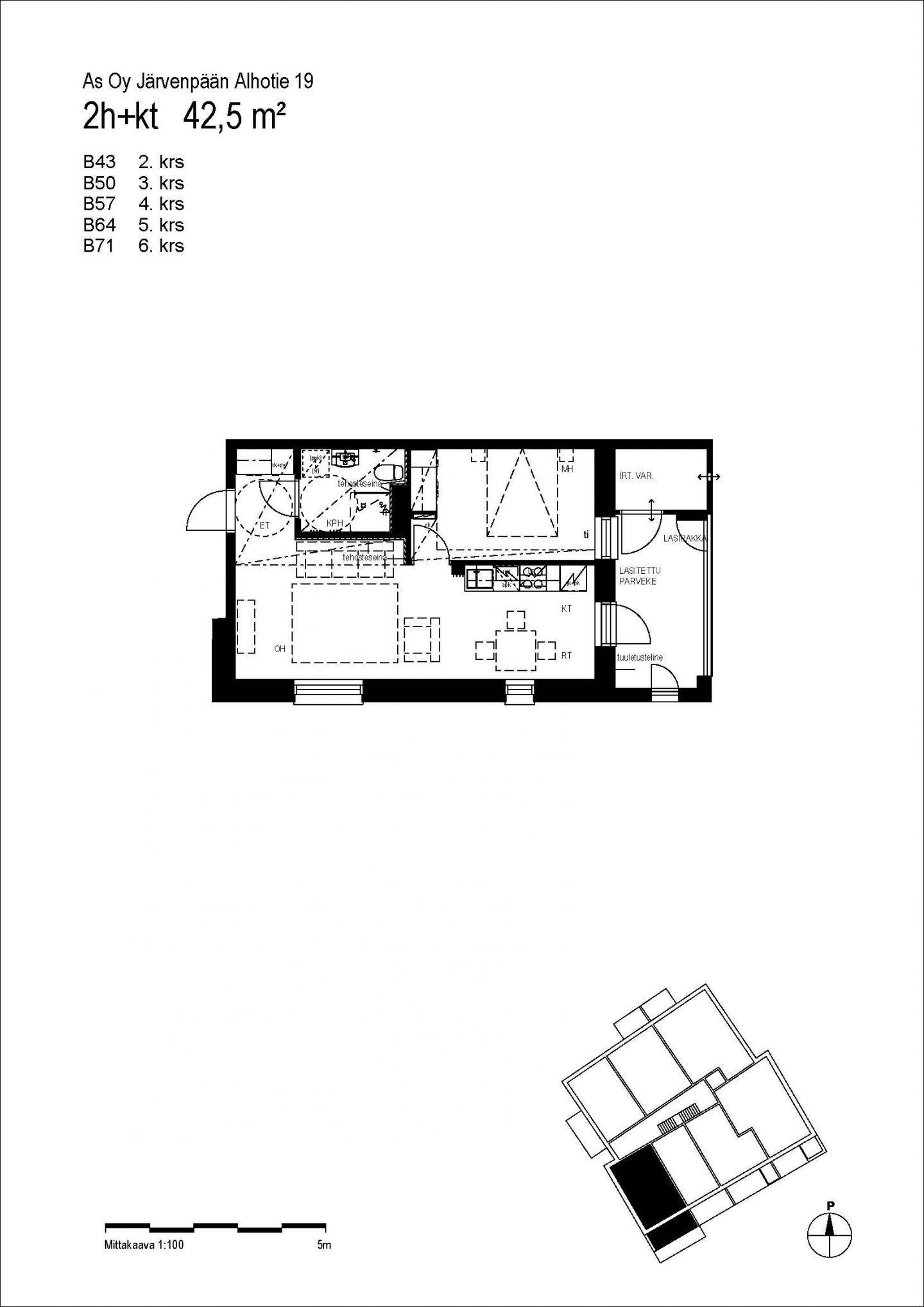
Järvenpään Alhotie 19 vuokrakohteen asunnot ovat selkeäpohjaisia ja esteettömyyteen on kiinnitetty erityistä huomiota. Valoisat asunnot ovat tasokkaasti varusteltuja ja soveltuvat monenlaiseen elämäntilanteeseen.
Huoneistovaihtoehtoja löytyy näppäristä yksiöistä tilaviin viiden huoneen asuntoihin. Jokaiseen
asuntoon kuuluu lasitettu parveke. Keittiöissä on mm. keraaminen liesi ja astianpesukone, asuntojen lattiat ovat laminaattia. Laatoitetuissa kylpyhuoneissa on mukavuuslattialämmitys. Osassa asuntoja on oma sauna. C-talossa sijaitseva talosauna on kaikkien asukkaiden käytettävissä.
Taloyhtiön yhteisiin tiloihin kuuluu mm. pesula ja kuivaushuoneet. Kaikkien asukkaiden käytössä on myös C-talon monikäyttötila. A-energialuokan talot lämpenevät maalämmöllä. Kohde sijaitsee omalla tontilla.
Asunnot ovat valtion tukemia lyhyen korkotuen vuokra-asuntoja. Asukasvalintaan käytetään tulorajoja. Linkin kautta lisätietoja tulorajoista:
https://ohjeet.varke.fi/fi/asukasvalinta/v4/miten-asukkaat-valitaan
Teethän vuokra-asuntohakemuksen. Asuntoja tarjotaan vain hakemuksen jättäneille. Saat asunnosta tarjouksen sähköpostiisi, mikäli voimme tarjota asuntoa sinulle.
Kohde ja asunnot ovat savuttomia koko kiinteistön alueella.
Asuntoihin ovat lemmikit tervetulleita.
Toistaiseksi voimassa oleva sopimus, kuitenkin vähintään 6 kk.
Tarkistamme hakijoiden luottotiedot Suomen Asiakastieto Oy:n tietokannasta.
Tervetuloa tutustumaan uuteen kotiin!