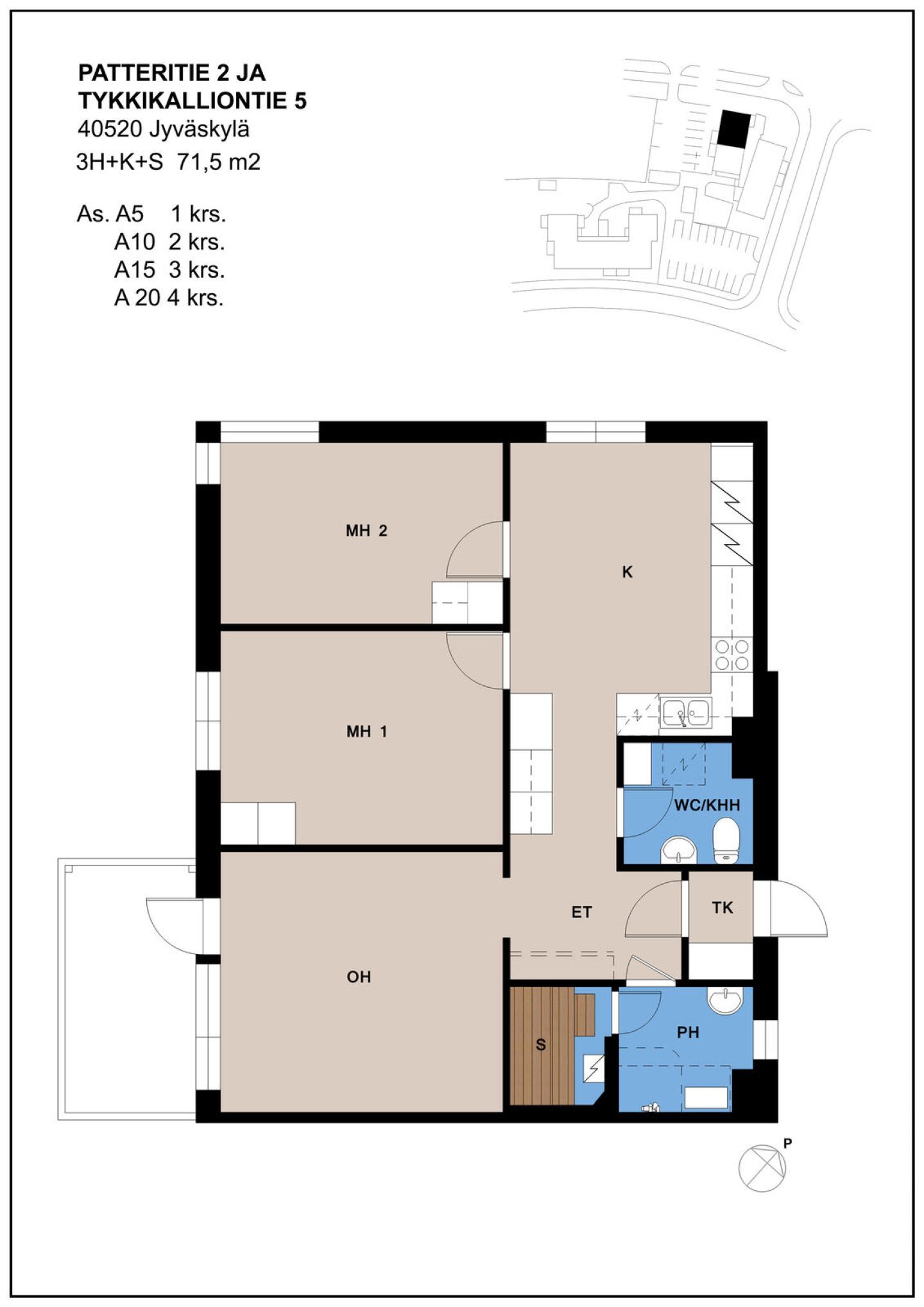
Patteritie 2 A 05
Kohteen kuvaus
Todella valoisa ensimmäisen kerroksen saunallinen kolmio. Huoneistossa vaalea laminaatti, märkätiloissa tyylikästä tummaa kaakelia lattioissa ja seinän tehosteraidassa, seinät muuten valkoiset. Erillinen wc, jossa pyykinpesukoneelle liitäntä ja hyvin tilaa. Keittiössä keraaminen liesi, jääkaappi/pakastinyhdistelmä ja astianpesukone.
Asunnon kuvaus
Todella valoisa ensimmäisen kerroksen saunallinen kolmio. Huoneistossa vaalea laminaatti, märkätiloissa tyylikästä tummaa kaakelia lattioissa ja seinän tehosteraidassa, seinät muuten valkoiset. Erillinen wc, jossa pyykinpesukoneelle liitäntä ja hyvin tilaa. Keittiössä keraaminen liesi, jääkaappi/pakastinyhdistelmä ja astianpesukone.
Kohteen kuvaus
Tämä Kuokkalan kaupunginosassa Ainolanrannassa sijaitseva asumisoikeuskohde koostuu hissillisestä 4. kerroksisesta kerrostalosta ja kaksikerroksisesta luhtitalosta.
Kaikki kohteen 30 huoneistoa on uudistettu perusparannuksen yhteydessä vuonna 2016: lattiat ovat laminaattia ja kylpyhuoneet on laatoitettu. Hyvin varusteluista keittiöistä löytyy keraaminen liesi ja astianpesukone. Asukkaiden käytössä on ilmainen pesutupa, kuivaushuone, kuntosali ja kerhohuone sekä huoneistokohtainen varasto (vintillä) ja ulkoiluvälinevarasto. Parkkialueelta löytyy 28 sähkötolpallista autopaikkaa.
Patteritie 2 -kohde sijaitsee Jyväsjärven tuntumassa, joten liikunnan harrastajille Jyväsjärveä kiertävä rantaraitti tarjoaa hyviä lenkkeilymaastoja ympäri vuoden. Patteritieltä on hyvät kulkuyhteydet keskustaan, sillä lähimmät linja-autopysäkit sijaitsevat kävelymatkan päässä ja pyöräilyreitit keskustaan ja muualle päin kaupunkia ovat hyvät.
Asumisoikeusasunnossa asut kohtuuhintaisessa asunnossa ja maksat kuukausittaista käyttövastiketta. Asumisoikeusasukkaana sinulla on pysyvä asumisturva. Pääset myös halutessasi remontoimaan kotiasi.
Lemmikit ovat tervetulleita Avain Asuntoihin.
Asunnon perustiedot
| Osoite | Patteritie 2 A 05, 40520 Ainola - Jyväskylä |
|---|---|
| Huoneistotyyppi | 3H+K+S |
| Asuintilojen pinta-ala | 71,5 m² |
| Kerros | 1/5 |
| Huoneistosauna | Kyllä |
| Irtainvarasto | Kyllä |
Hintatiedot
| Asumisoikeusmaksu | 12 615,47 € |
|---|---|
| Alkuperäinen ASO-maksu | 6 522,33 € |
| Indeksitarkistus | 6 093,14 € |
| Muutostyöt | 0,00 € |
| Vastike | 862,50 €/kk |
| Vesimaksutyyppi | Vesimaksu |
| Vesimaksu | 25,00 €/hlö/kk |
| Autopaikan hinta alkaen | 18,00 €/kk |
| Vakuus | 250,00 € |
| Tietoliikenneyhteydet | Taloyhtiölaajakaista Elisa 50/50 Mb/s sis. vastikkeeseen/vuokraan. |
- 040 640 4800
- asiakaspalvelu@avainyhtiot.fi
- Avain Asunnot, Vapaudenkatu 48-50, 40100 Jyväskylä
Kohteen perustiedot
| Kohteen nimi | Jyväskylän Patteritie 2 |
|---|---|
| Osoite | Patteritie 2 ja Tykkikalliontie 5, 40520 Ainola - JYVÄSKYLÄ |
| Asumismuoto | Asumisoikeus |
| Rakennusvuosi | 1993 |
| Rakennuksen tyyppi | Kerrostalo |
| Hissi | Kyllä |
| Asuntoja | 30 |
| Kerroksia | 4 |
| Energialuokka | D (2007) |
| Lämmitysmuoto | Kaukolämpö |
| Tontin omistus | Vuokra |
| Antennijärjestelmä | Kaapeli-tv |
| Autopaikkoja yhteensä | 28 |
Kohteen yhteistilat
| Kerhohuone |
|---|
| Pesutupa |
| Kuivaushuone |
| Ulkoiluvälinevarasto |
| Väestönsuoja |
- 040 640 4800
- asiakaspalvelu@avainyhtiot.fi
- Avain Asunnot, Vapaudenkatu 48-50, 40100 Jyväskylä