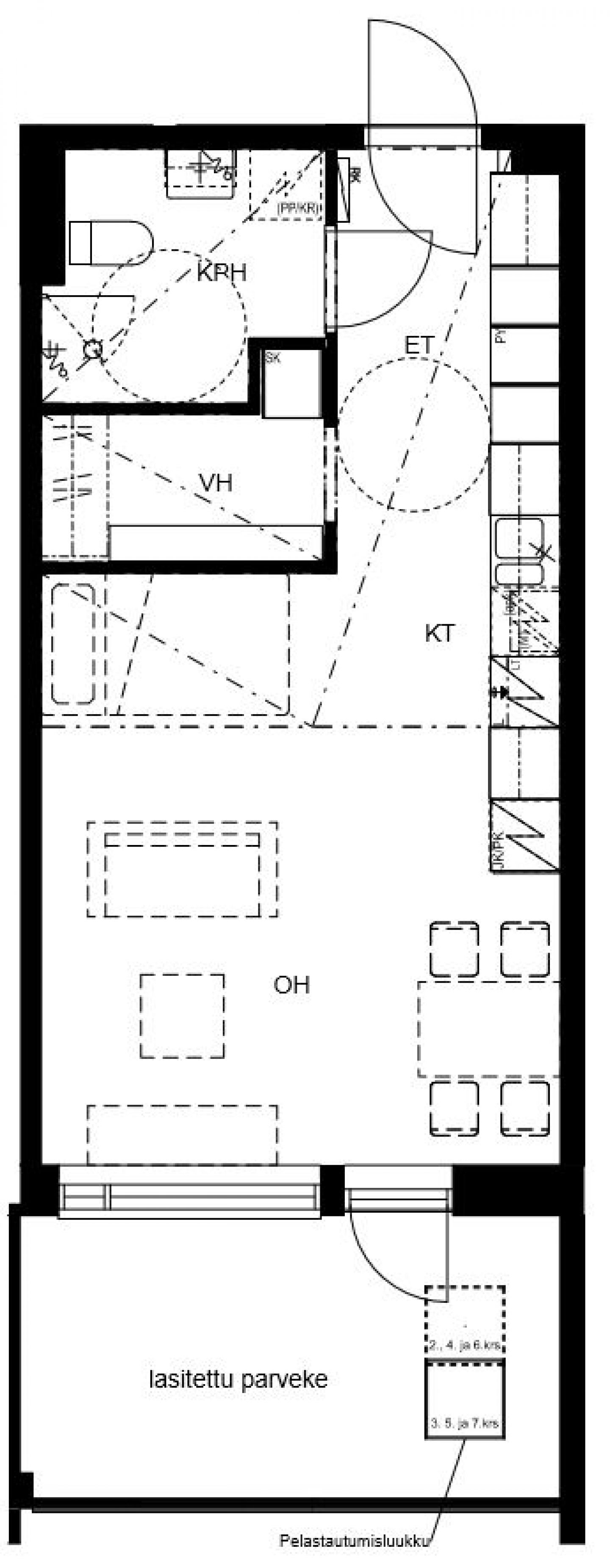
Haettavana ylimmän kerroksen yksiö. Hyvin varustellusta asunnosta löytyy astianpesukone, keraaminen liesi, sälekaihtimet, laatoitetut pesutilat sekä koko huoneiston levyinen lasitettu parveke, jolta pääset ihastelemaan upeaa Kaivannonlahden järvimaisemaa. Lisäksi vastikkeeseen sisältyy laajakaistayhteys. Olisiko tämän sinun uusi kotisi?
Asunnon kuvaus
Haettavana ylimmän kerroksen yksiö. Hyvin varustellusta asunnosta löytyy astianpesukone, keraaminen liesi, sälekaihtimet, laatoitetut pesutilat sekä koko huoneiston levyinen lasitettu parveke, jolta pääset ihastelemaan upeaa Kaivannonlahden järvimaisemaa. Lisäksi vastikkeeseen sisältyy laajakaistayhteys. Olisiko tämän sinun uusi kotisi?
Kohteen kuvaus
Viihtyisälle Lehtonimen Kaivannolahden alueelle vuonna 2018 valmistunut kohde. Alueella on laajat vihervyöhykkeet ja ulkoilureitit.
Asunnoissa on suuret lasitettut parvekkeet.
Seitsemänkerroksisessa talossa on yhteensä 34 valoisaa asumisoikeusasuntoa.
Asuntotyyppejä löytyy h+kt asunnoista 4h+kt+r+s:n asuntoihin. 4h+kt+r+s:n huikean näköalan lisäksi asuntoon kuuluu
kaksi lasitettua parveketta.
Asunnoissa on laminaattilattia, keraaminen liesi, astianpesukone, parvekelasitus
sekä vastikkeeseen sisältyvä laajakaistayhteys.
Autoilevalle on sekä katos- että pihapaikkoja tarjolla.
Asumisoikeusasunnossa asut kohtuuhintaisessa asunnossa ja maksat kuukausittaista käyttövastiketta. Asumisoikeusasukkaana pääset remontoimaan myös kotiasi ja sinulla on pysyvä asumisturva. Lemmikit ovat tervetulleita Avain Asuntoihin.
Asunnon perustiedot
Osoite
Kaivannonlahdenkatu 3 A 32, 70840 Lehtoniemi - Kuopio